• Sledovat cenu
  •  

Zasílání upozornění emailem:

Prodej bytu 2+1, 56 m2 - Jiráskova, Pardubice

Cena: 4 790 000 Kč
Stav:Volný
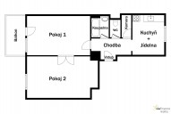
2+1, 56 m2, cihlová, OV, 3. podlaží
Popis: Prodej bytu 2+1 v centru Pardubic – skvělá příležitost k vytvoření moderního 3+kk dle vlastních představ
Hledáte byt v srdci Pardubic, k...de budete mít doslova všechno po ruce? Chcete si prostor upravit podle vlastních představ a vytvořit si bydlení přesně na míru? Pak vás může zaujmout tato nabídka.

Nabízíme k prodeji byt o dispozici 2+1 a celkové ploše cca 56 m², který se nachází ve 3. patře zděného bytového domu bez výtahu, přímo v centru Pardubic. Dům je udržovaný a má jen několik bytových jednotek, což zaručuje klidnější atmosféru a příjemné sousedské prostředí.

Dispozice a potenciál:
Byt je v původním, udržovaném stavu, což nabízí ideální možnost k rekonstrukci dle vlastního vkusu. Dispozičně lze byt jednoduše přestavět na moderní 3+kk, protože dvě obytné místnosti jsou průchozí a kuchyň je samostatná – nabízí se tak možnost propojení kuchyně s obývacím prostorem a vytvoření dalšího samostatného pokoje.

Součástí nabídky jsou dva sklepy – jeden o velikosti cca 2 m² a druhý cca 5 m², které poskytují dostatek prostoru i pro uložení sezónních věcí, kol nebo nářadí.

Výhody této nemovitosti:
Atraktivní poloha v centru města – veškerá občanská vybavenost na dosah
Možnost úpravy na dispozici 3+kk – ideální pro bydlení i investici
Dva prostorné sklepy v ceně
Zděný dům s malým počtem bytů – klidné a příjemné prostředí
Výborná dostupnost MHD i vlakového/autobusového nádraží
Fond oprav pouze 1 333 Kč měsíčně
Možnost parkování ve vnitrobloku domu i před domem (rezidenční zóna)
Možnost kompletní rekonstrukce podle vlastních představ

Občanská vybavenost a doprava:
Byt se nachází v lokalitě s výjimečnou dostupností – na vlakové i autobusové nádraží dojdete během několika minut, stejně tak do obchodního centra, na poštu, do školy nebo na úřad. MHD staví doslova za rohem. Auto zde téměř nepotřebujete – vše, co ke každodennímu životu potřebujete, je dostupné pěšky.

Shrnutí:
Tato nemovitost je ideální volbou pro ty, kteří chtějí bydlet v centru města, ale zároveň si prostor upravit dle svých představ. Stejně tak jde o výbornou investici – byty v této lokalitě jsou trvale žádané a nabízejí dobré zhodnocení při dalším pronájmu nebo prodeji po rekonstrukci.

V případě zájmu o prohlídku nebo další informace mě neváhejte kontaktovat. Rád Vám nemovitost osobně představím a zodpovím veškeré dotazy.

Vizualizace slouží pro představu dispozic a možného vybavení interiéru.
  • Vložení inzerátu:
    9.10.2025
  • Kód:
    01186
  • K dispozici od:
    0.0.0
  • Typ nemovitosti:
    Byt
  • Typ budovy:
    Cihlová
  • Dispozice:
    2+1
  • Vlastnictví:
    OV
  • Podlaží:
    3
  • Podlahová plocha:
    56 m2
  • Balkón:
    2 m2
  • Sklep:
    7 m2
  • Stav objektu:
    Dobrý
  • Umístění objektu:
    Centrum
  • Telekomunikace:
    Telefon, Internet, Kabelová televize
  • Elektřina:
    230 V
  • Doprava:
    silnice, dálnice, MHD, autobus, vlak
  • Odpad:
    kanalizace
  • Komunikace:
    asfaltová
  • Energetická náročnost:
    G - Mimořádne nehospodárná
  • Nabídky v okolí:
  • Informace o obci:
    Obec Pardubice má 90401 obyvatel, z toho 62260 v produktivním věku.
    V obci se nachází pošta.
    V obci se nachází škola, popř. školka.
    V obci se nachází zdravotní zařízení.
    V obci je rozvod kanalizace.
    V obci je rozvod městské vody.
    V obci je rozvod plynu.
Lokalita: Jiráskova , Pardubice, okres Pardubice, Česká republika Jiráskova, Pardubice



Volná pracovní místa ExpertPrace.cz
  • Objednání prohlídky a více informací
  •  
  • Poslat na e-mail
  •  

Zasílání odkazu na realitu emailem: