• Sledovat cenu
  •  

Zasílání upozornění emailem:

Prodej bytu 2+1, 55 m2 - Bratří Čapků, Žďár nad Sázavou 4, Žďár nad Sázavou, okr. Žďár nad Sázavou (již není v nabídce)

Cena: 3 050 000 Kč
Stav:archiv
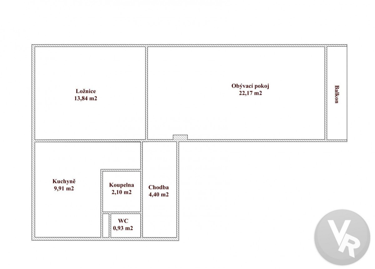
2+1, 55 m2, cihlová, OV, 5. podlaží
Popis: Nabízíme k prodeji byt s dispozicí 2+1 v obci Žďár nad Sázavou, na ulici Bratří Čapků. Nachází se v 5. NP (páté nadzemní patro)/8, v cihlovém domě včetně výtahu. Celková plocha byt...u činí 55, 10 m2 a k bytu náleží hezký prostorný balkon s moc hezkým výhledem a sklep.

Dispozice: Vstupní chodba 4, 4 m2, koupelna s vanou 2, 10 m2, samostatná toaleta 0, 93 m2. Z Chodby se vchází do kuchyně 9, 91 m2, obývacího pokoje 22, 17 m2 a do ložnice 13, 4 m2. Do ložnice je možný vstup i z kuchyně. Z obývacího pokoje je nový prostorný balkon s moc hezkým výhledem do zeleně. K dispozici je i sklep o velikosti 1, 75 m2 a společná kolárna a kočárkárna. Byt. jednotka je v udržovaném standardu.

Na domě proběhly následující opravy: Výměna oken za plastová, stoupací vedení, zateplení, fasáda, nové moc hezké a prostorné balkony a oprava střechy.

Náklady na bydlení jsou nízké a činí celkem včetně fondu oprav, vodného, záloh na vytápění a dalších poplatků spojených s užíváním bytu 3 720, - Kč + zálohy na elektřinu, dle vlastní spotřeby.

Výborná a velice pěkná lokalita s dostatkem zeleně a perfektní občanskou vybaveností. V těsné blízkosti se nachází BALA potraviny, mateřská školka, základní škola, hřiště, relaxační centrum SPORTIS, Gymnázium, dále se v blízkosti nachází Vyšší odborná škola, Střední průmyslová škola, Lidl, poliklinika, pošta a další

Doporučujeme Vám prohlídku

Podobné nabídky v okolí

Lokalita: Bratří Čapků , Žďár nad Sázavou 4, Žďár nad Sázavou, okres Žďár nad Sázavou, Česká republika Bratří Čapků, Žďár nad Sázavou 4, Žďár nad Sázavou, okr. Žďár nad Sázavou