• Sledovat cenu
  •  

Zasílání upozornění emailem:

Prodej bytu 2+1, 55 m2 - Kozinova, Ústí nad Orlicí (již není v nabídce)

Cena: 2 595 000 Kč
Stav:archiv
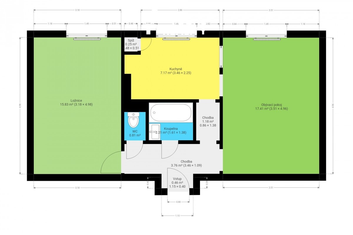
2+1, 55 m2, cihlová, OV, 1. podlaží
Popis: Nabízíme k prodeji byt 2+1 v osobním vlastnictví, situovaný v klidné a žádané lokalitě města Ústí nad Orlicí. Byt o podlahové ploše 49 m2 se nachází v přízemí (1. nadzemn...í podlaží) dvoupodlažního zděného bytového domu.

Dispozice bytu sestává z praktické předsíně, dvou neprůchozích pokojů, kuchyně, koupelny a samostatného sociální zařízení WC. Byt je v původním stavu, což umožňuje novým majitelům realizovat úpravy podle vlastních představ. Vytápění i ohřev teplé vody jsou řešeny ústředním topením s novým kombinovaným plynovým kotlem (nedávná investice cca 100 000 Kč). V celém bytě jsou plastová okna a komín prošel nedávnou rekonstrukcí (nové vyvložkování).

K bytu náleží dva sklepy o velikosti 9 m2 a 2, 35 m2. Velkou výhodou je umístění domu v mimořádně klidné lokalitě s výbornou dostupností veškeré občanské vybavenosti – nemocnice, úřady, pošta, školy, obchody, restaurace a kulturní zařízení, náměstí, atp.

Nemovitost lze bez problémů financovat hypotečním úvěrem a není zatížena žádnými dluhy ani závazky.

Pro více informací nebo sjednání osobní prohlídky mě neváhejte kontaktovat.
  • Vložení inzerátu:
    31.3.2025
  • Kód:
    2025005
  • K dispozici od:
    0.0.0
  • Typ nemovitosti:
    Byt
  • Typ budovy:
    Cihlová
  • Dispozice:
    2+1
  • Vlastnictví:
    OV
  • Podlaží:
    1
  • Podlahová plocha:
    55 m2
  • Sklep:
    Ano
  • Stav objektu:
    Před rekonstrukcí
  • Umístění objektu:
    Klidná část
  • Voda:
    dálkový vodovod
  • Elektřina:
    230 V
  • Doprava:
    vlak, silnice, autobus
  • Topeni:
    ústřední plynové
  • Plyn:
    plynovod
  • Odpad:
    kanalizace
  • Komunikace:
    asfaltová
  • Energetická náročnost:
    G - Mimořádne nehospodárná
  • Nabídky v okolí:
  • Informace o obci:
    Obec Ústí nad Orlicí má 14499 obyvatel, z toho 10004 v produktivním věku.
    V obci se nachází pošta.
    V obci se nachází škola, popř. školka.
    V obci se nachází zdravotní zařízení.
    V obci je rozvod kanalizace.
    V obci je rozvod městské vody.
    V obci je rozvod plynu.

Podobné nabídky v okolí

Lokalita: Kozinova , Ústí nad Orlicí, okres Ústí nad Orlicí, Česká republika Kozinova, Ústí nad Orlicí