• Sledovat cenu
  •  

Zasílání upozornění emailem:

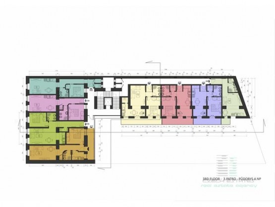
Prodej bytu 2+1, 55 m2 - Mečislavova, Praha (již není v nabídce)

Cena: 6 176 500 Kč
Stav:archiv
2+1, 55 m2, cihlová, OV, 4. podlaží
Popis: Dům se nachází v tiché části Nuslí. Nedaleko je náměstí Bratří Synků s veškerou občanskou vybaveností, množstvím obchodů a restaurací. Do centra se dostanete autem během několika minut. MHD je to pár stanic tramvají. V d...ochozí vzdálenosti se nachází i škola a školka. Nedaleko je i Metropolitní odborná umělecká střední škola. V pěší vzdálenosti se nacházejí i Havlíčkovy sady, které lákají k procházkám a k odpočinku. Projekt je po kompletní renovaci v nejvyšších standardech. K jednotce je k dispozici i sklep . Parkování je možné zcela bezproblémově na ulici před domem.
  • Vložení inzerátu:
    24.6.2020
  • Kód:
    0995
  • Typ nemovitosti:
    Byt
  • Typ budovy:
    Cihlová
  • Dispozice:
    2+1
  • Vlastnictví:
    OV
  • Podlaží:
    4
  • Podlahová plocha:
    55 m2
  • Stav objektu:
    Velmi dobrý
  • Energetická náročnost:
    G - Mimořádne nehospodárná
  • Podle vyhlášky:
    c. 78/2013 Sb.
  • Nabídky v okolí:
  • Informace o obci:
    Obec Praha má 1257158 obyvatel, z toho 889974 v produktivním věku.
    V obci se nachází pošta.
    V obci se nachází škola, popř. školka.
    V obci se nachází zdravotní zařízení.
    V obci je rozvod kanalizace.
    V obci je rozvod městské vody.
    V obci je rozvod plynu.

Podobné nabídky v okolí

Lokalita: Mečislavova , Praha, Česká republika Mečislavova, Praha