• Sledovat cenu
  •  

Zasílání upozornění emailem:

Prodej bytu 2+1, 54 m2 - Čajkovského, Mizerov, Karviná, okr. Karviná (již není v nabídce)

Cena: 1 500 000 Kč
Stav:archiv
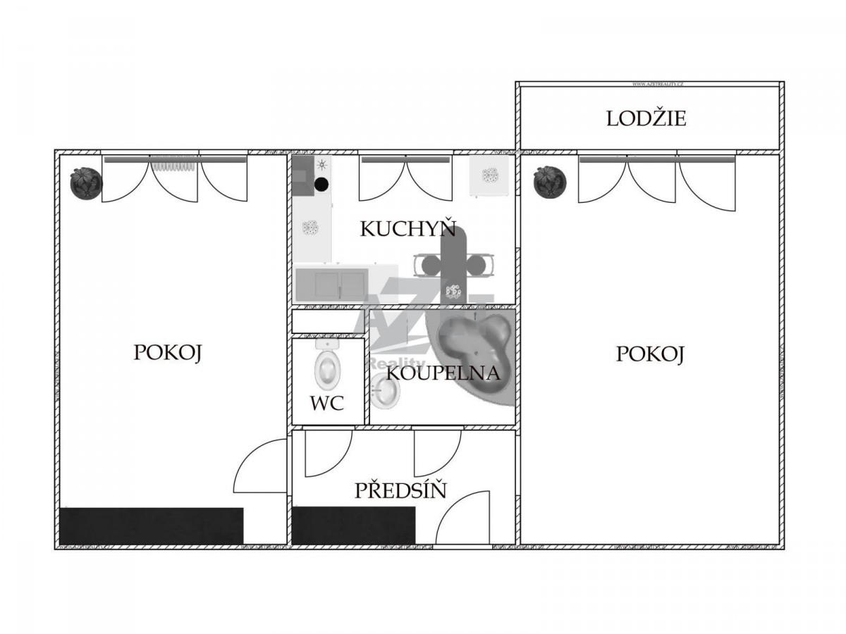
2+1, 54 m2, panelová, OV, 3. podlaží
Popis: Naše společnost Vám nabízí k prodeji byt v osobním vlastnictví se zasklenou lodžií ve 3. patře po částečné rekonstrukci. Zděné jádro. Neprůchozí pokoje. Předsíň s vestavěnou skříní. Keramicky obložená koupelna s rohovou ...vanou a vyhrazeným místem pro pračku. Samostatné sociální zařízení WC Kombi. Rohová kuchyňská linka s barovým posezením. Plovoucí podlahy v obývacím pokoji, kuchyni a předsíni. Parkety v ložnici. Plastová okna se žaluziemi a parapety. Vestavěná skříň v předsíni a postel (bez matrací) v ložnici je součástí nabídky. Voda a odpady v plastu. K bytu náleží zabezpečený sklep. Koupě této nemovitosti Vám může posloužit i jako investiční záměr. V současné době je v bytové jednotce nájemce a nebrání se prodloužit nájemní smlouvu s novým majitelem. Jestliže máte v úmyslu využít vlastní bydlení, je to další možnost pro Vás. Fond oprav 2100, - Kč/měs. Roční vyúčtování za teplo vždy v plusu. Velkou výhodou této lokality je bezprostřední dostupnost městské hromadné dopravy a nespočet parkovacích míst. Revitalizace obytného domu proběhla v podobě fasády, zateplení, střechy, výtahu, realizace lodžií (2020) a vstupního vchodu. Maximální občanská vybavenost ve všech směrech. Doporučujeme Vám prohlídku. Průkaz energetické náročnosti v energetické třídě "E". Finanční poradenství zajistíme zdarma se zvýhodněným úročením. Pro více informací kontaktujte našeho makléře. Těšíme se na Vaší návštěvu.
  • Vložení inzerátu:
    1.8.2021
  • Kód:
    707/4500
  • Typ nemovitosti:
    Byt
  • Typ budovy:
    Panelová
  • Dispozice:
    2+1
  • Vlastnictví:
    OV
  • Podlaží:
    3
  • Podlahová plocha:
    54 m2
  • Lodžie:
    4 m2
  • Sklep:
    2 m2
  • Stav objektu:
    Velmi dobrý
  • Bezbariérový byt:
    Ano
  • Telekomunikace:
    Internet, Kabelová televize
  • Voda:
    dálkový vodovod
  • Elektřina:
    230 V
  • Doprava:
    silnice, dálnice, MHD, autobus, vlak
  • Topeni:
    ústřední dálkové
  • Plyn:
    plynovod
  • Odpad:
    kanalizace
  • Komunikace:
    asfaltová
  • Bezbariérový přístup:
    Ano
  • Energetická náročnost:
    E - Nehospodárná
  • Podle vyhlášky:
    c. 78/2013 Sb.
  • Ukazatel náročnosti:
    195 kWh/m2
  • Nabídky v okolí:

Podobné nabídky v okolí

Lokalita: Čajkovského , Mizerov, Karviná, okres Karviná, Česká republika Čajkovského, Mizerov, Karviná, okr. Karviná