• Sledovat cenu
  •  

Zasílání upozornění emailem:

Prodej bytu 2+1, 54 m2 - Provaznická, Hrabůvka, Ostrava, okr. Ostrava-město (již není v nabídce)

Cena: 720 000 Kč
Stav:archiv
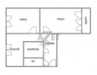
2+1, 54 m2, panelová, družstevní, 4. podlaží
Popis: Naše společnost Vám nabízí družstevní byt s lodžií po částečné rekonstrukci ve 4. patře nízkopodlažní zástavby. Vhodná rekonstrukce dle Vašich představ. Klidná a žádaná oblast Ostravy - Hrabůvky. Polozděné jádro, nová ...koupelna (2015) se sprchovacím koutem keramicky obložená, nová plastová okna se žaluziemi a parapety, kuchyňská linka s kombinovanou troubou, prostorná předsíň s vestavěnou skříní, zachovalé parketová podlaha v obou pokojích. Výhled na 2 světové strany (jihozápad vs severovýchod). K bytu náleží i zabezpečený sklep s kolárnou. Obytný dům si prošel revitalizací v podobě nové fasády se zateplením, nové střechy, nových stoupaček, vody v plastu, nového vstupního vchodu s poštovními schránkami. Výhodou bytu je nízký měsíční nájem 3000, - Kč včetně fondu oprav. Maximální občanská vybavenost ve všech směrech. Doporučujeme Vám prohlídku. Byt není možné převést do osobního vlastnictví. Průkaz energetické náročnosti není k dispozici, proto nemovitost inzerujeme dle zákona v energetické třídě G. Finanční poradenství zajistíme zdarma. Pro více informací kontaktujte našeho makléře.
  • Vložení inzerátu:
    18.1.2019
  • Kód:
    52/4500
  • Typ nemovitosti:
    Byt
  • Typ budovy:
    Panelová
  • Dispozice:
    2+1
  • Vlastnictví:
    Družstevní
  • Podlaží:
    4
  • Podlahová plocha:
    54 m2
  • Lodžie:
    Ano
  • Sklep:
    Ano
  • Stav objektu:
    Velmi dobrý
  • Bezbariérový byt:
    Ano
  • Telekomunikace:
    Internet, Kabelová televize
  • Voda:
    dálkový vodovod
  • Elektřina:
    230 V
  • Doprava:
    silnice, dálnice, MHD, autobus, vlak
  • Topeni:
    ústřední dálkové
  • Plyn:
    plynovod
  • Odpad:
    kanalizace
  • Komunikace:
    asfaltová
  • Bezbariérový přístup:
    Ano
  • Energetická náročnost:
    G - Mimořádne nehospodárná
  • Nabídky v okolí:

Podobné nabídky v okolí

Lokalita: Provaznická , Hrabůvka, Ostrava, okres Ostrava-město, Česká republika Provaznická, Hrabůvka, Ostrava, okr. Ostrava-město