• Sledovat cenu
  •  

Zasílání upozornění emailem:

Prodej bytu 2+1, 54 m2 - Sokolská, Doksy, okr. Česká Lípa

Cena: 3 170 000 Kč
Stav:Volný
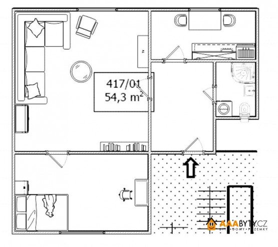
2+1, 54 m2, cihlová, OV, 1. podlaží
Popis: Hledáte klidné bydlení s přírodou na dosah ruky?

Nabízíme Vám byt 2+1 o výměře 54 m v centru Doks u Máchova jezera. Doksy jsou malebné město v Libereckém kraji, ležící na břehu moc... hezkého Máchova jezera. Byt se nachází v kompletně zatepleném domě s plastovými okny a novou fasádou a je připraven k okamžitému nastěhování.

Nabízená bytová jednotka v osobním vlastnictví je umístěna v prvním nadzemním podlaží cihlového domu. Výhodou tohoto bytu je praktické dispoziční řešení.
Dispozice bytu: Předsíň, ze které je vstup jak do samostatné kuchyně, která umístěním nenarušuje obývací část, dále pak do obývacího pokoje, z kterého je vstup do ložnice orientované na dvorek do klidné části domu a také do koupelny se sprchovým koutem - koupelna a toaleta jsou řešeny společně.

Vytápění a ohřev vody jsou řešeny prostřednictvím plynového kotle. K bytu náleží sklep o výměře 3, 5 m2, umístěný v podzemním podlaží domu.

Byt je příjemným prostředím vhodným jak pro jednotlivce, tak pro páry.

Tento byt je ideální jak pro vlastní bydlení, tak i jako investiční příležitost.
V tomto domě jsou v nabídce k prodeji ještě další dva byty o dispozici 2+1 a 2+kk.

Lokalita: Doksy poskytují veškerý komfort moderního bydlení školy, školky, lékaře, veterinární kliniku, poštu, obchody i restaurace.
Volný čas lze trávit u Máchova jezera, v nedalekých lesích, na cyklostezkách, turistických trasách nebo sportovištích.
Na výlety můžete vyrazit k jezeru, na zámek Doksy, na hrad Bezděz či na naučnou stezku okolo Blaťáku.
Doprava do Doks je možná autem, vlakem, autobusem i lodí. Vlakové i autobusové nádraží je v docházkové vzdálenosti.
Sezonně funguje lodní doprava po Máchově jezeře mezi Doksy, Starými Splavy a dalšími místy. V letním období je v provozu i výletní vláček.

Měsíční náklady činí cca 5. 500 Kč ( zálohy na plyn, elektřinu a vodu, atd. )

Pokud hledáte klidné bydlení s přírodou na dosah ruky, přijďte se přesvědčit osobně.
Těším se na setkání na osobní prohlídce.

  • Vložení inzerátu:
    9.10.2025
  • Kód:
    17097
  • Typ nemovitosti:
    Byt
  • Typ budovy:
    Cihlová
  • Dispozice:
    2+1
  • Vlastnictví:
    OV
  • Podlaží:
    1
  • Podlahová plocha:
    54 m2
  • Sklep:
    Ano
  • Stav objektu:
    Po rekonstrukci
  • Bezbariérový byt:
    Ano
  • Voda:
    dálkový vodovod
  • Elektřina:
    230 V
  • Doprava:
    vlak, silnice, autobus
  • Topeni:
    ústřední plynové
  • Bezbariérový přístup:
    Ano
  • Energetická náročnost:
    G - Mimořádne nehospodárná
  • Nabídky v okolí:
  • Informace o obci:
    Obec Doksy má 1377 obyvatel, z toho 973 v produktivním věku.
    V obci se nachází pošta.
    V obci se nachází zdravotní zařízení.
    V obci je rozvod kanalizace.
    V obci je rozvod městské vody.
    V obci je rozvod plynu.
Lokalita: Sokolská , Doksy, okres Česká Lípa, Česká republika Sokolská, Doksy, okr. Česká Lípa



  • Objednání prohlídky a více informací
  •  
  • Poslat na e-mail
  •  

Zasílání odkazu na realitu emailem: