• Sledovat cenu
  •  

Zasílání upozornění emailem:

Prodej bytu 2+1, 52 m2 - Omlenická, Kaplice, okr. Český Krumlov

Cena: 3 000 000 Kč
Stav:Volný
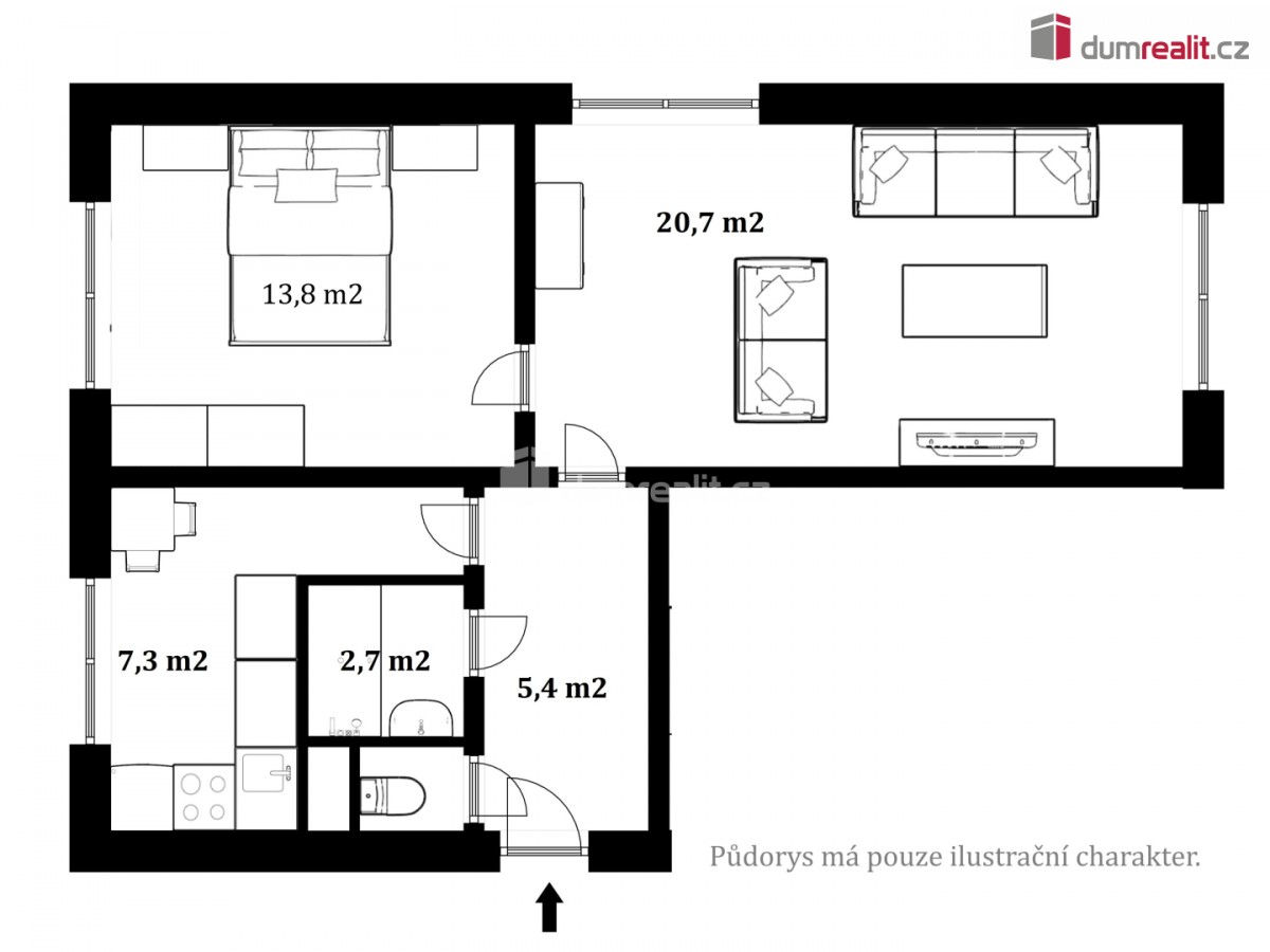
2+1, 52 m2, cihlová, OV, 2. podlaží
Popis: Cena včetně právního servisu a provize RK. . Dumrealit. cz Vám nabízí prodej bytu 2+1, 52 m², bez balkonu, se třemi sklepy a řadovou kolnou u domu, v osobním vlastnictví, ve druh...ém patře třípodlažního zděného domu bez výtahu, ul. Omlenická, Kaplice.

Jedná se o byt v původním stavu pře rekonstrukcí, vyklizený, včetně kuchyňské linky, sociální zařízení WC a koupelny, připravený na realizaci představ o bydlení nového majitele. Okna jsou plastová, v pokojích na podlaze parketová podlaha. Kolna o 10 m² zastavěné plochy přímo před vchodem, viz mapa v galerii.

Aktuální měsíční náklady činní 1. 400, - z toho fond oprav 966, - . Aktuální způsob vytápění je kamny v obýváku, v minulosti byli také využívány přímotopy. Ohřev vody byl řešen bojlerem. Dům je udržovaný, zateplený s novou fasádou a střechou, včetně klempířských prvků.

Veškerá občanská vybavenost města Kaplice v dosahu chůze. Výborný autobusový spoj do Českých Budějovic, kde autem jste na okraji za cca 27 min. Dojezdová vzdálenost na hraniční přechod Dolní Dvořiště je cca 11km.

S případným profinancováním pořizovací ceny hypotékou vám ochotně pomůže náš specialista. Ev. číslo: 654062. Energetický štítek: G
  • Vložení inzerátu:
    21.1.2026
  • Kód:
    4075709
  • Typ nemovitosti:
    Byt
  • Typ budovy:
    Cihlová
  • Dispozice:
    2+1
  • Vlastnictví:
    OV
  • Podlaží:
    2
  • Podlahová plocha:
    52 m2
  • Sklep:
    Ano
  • Stav objektu:
    Před rekonstrukcí
  • Energetická náročnost:
    G - Mimořádne nehospodárná
  • Nabídky v okolí:
  • Informace o obci:
    Obec Kaplice má 7355 obyvatel, z toho 5394 v produktivním věku.
    V obci se nachází pošta.
    V obci se nachází škola, popř. školka.
    V obci se nachází zdravotní zařízení.
    V obci je rozvod kanalizace.
    V obci je rozvod městské vody.
    V obci je rozvod plynu.
Lokalita: Omlenická , Kaplice, okres Český Krumlov, Česká republika Omlenická, Kaplice, okr. Český Krumlov

Kontakt

Jiří Kejšar


Podobné nabídky v okolí


Volná pracovní místa ExpertPrace.cz
  • Objednání prohlídky a více informací
  •  
  • Poslat na e-mail
  •  

Zasílání odkazu na realitu emailem: