• Sledovat cenu
  •  

Zasílání upozornění emailem:

Prodej bytu 2+1, 51 m2 - Došlíkova 3894, Brno, okr. Brno-město (již není v nabídce)

Cena: 6 390 000 Kč
Stav:archiv
2+1, 51 m2, cihlová, OV, 2. podlaží
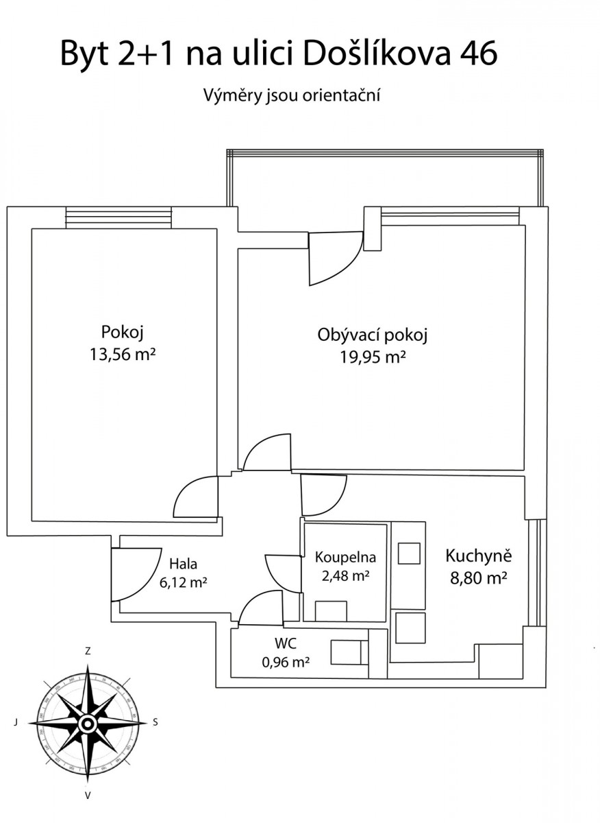
Popis: Prodej velice hezkého bytu o dispozici 2+1 s lodžií a sklepem v Brně na ulici Došlíkova. Byt je situovaný ve druhém patře čtyřpatrového cihlového domu bez výtahu. Lokalita nabízí dos...tatek zeleně a možnost relaxace, včetně blízké přírodní památky Bílá hora.

Dispozičně byt zahrnuje prostornou předsíň, obývací pokoj se vstupem na lodžii, ložnici, kuchyni s jídelní částí, koupelnu, samostatné sociální zařízení WC a sklep. V obytných místnostech jsou zachovalé parketová podlaha, elektřina je v mědi. Byt je v původním, ale udržovaném stavu, což novým majitelům dává možnost modernizace dle vlastních představ.

Dům je po částeční revitalizaci (plastová okna, vstup, soupačky). V blízkosti se nachází školy, školky, obchody, lékařská zařízení i zastávky MHD s výbornou dostupností do centra Brna. V domě je dostupná kabelová televize a internetové připojení.

Byt ani dům nejsou zatíženy úvěrem. Možno financovat hypotečním úvěrem. Pro domluvení prohlídky nás neváhejte kontaktovat!

Velikost: 2+1; celková výměra bytu je 59, 0 m2 (včetně sklepa a lodžie);
konstrukce: cihlová; vlastnictví: osobní; podlaží: 2/4);
orientace: S, Z; náklady na byt: 4. 056, - Kč/měsíc + el. a plyn ;
nastěhování: ihned; výtah: ne;
  • Vložení inzerátu:
    7.4.2025
  • Kód:
    N/RSB/21063/25
  • K dispozici od:
    0.0.0
  • Typ nemovitosti:
    Byt
  • Typ budovy:
    Cihlová
  • Dispozice:
    2+1
  • Vlastnictví:
    OV
  • Podlaží:
    2
  • Podlahová plocha:
    51 m2
  • Lodžie:
    4 m2
  • Sklep:
    2 m2
  • Stav objektu:
    Velmi dobrý
  • Umístění objektu:
    Klidná část
  • Voda:
    dálkový vodovod
  • Topeni:
    ústřední dálkové
  • Odpad:
    kanalizace
  • Energetická náročnost:
    D - Méne úsporná
  • Podle vyhlášky:
    c. 78/2013 Sb.
  • Ukazatel náročnosti:
    150 kWh/m2
  • Nabídky v okolí:
  • Informace o obci:
    Obec Brno má 371371 obyvatel, z toho 256490 v produktivním věku.
    V obci se nachází pošta.
    V obci se nachází škola, popř. školka.
    V obci se nachází zdravotní zařízení.
    V obci je rozvod kanalizace.
    V obci je rozvod městské vody.
    V obci je rozvod plynu.

Podobné nabídky v okolí

Lokalita: Došlíkova 3894, Brno, okres Brno-město, Česká republika Došlíkova 3894, Brno, okr. Brno-město