• Sledovat cenu
  •  

Zasílání upozornění emailem:

Prodej bytu 2+1, 49 m2 - Krestova 1301, Hrabůvka, Ostrava, okr. Ostrava-město (již není v nabídce)

Cena: 2 125 000 Kč
Stav:archiv
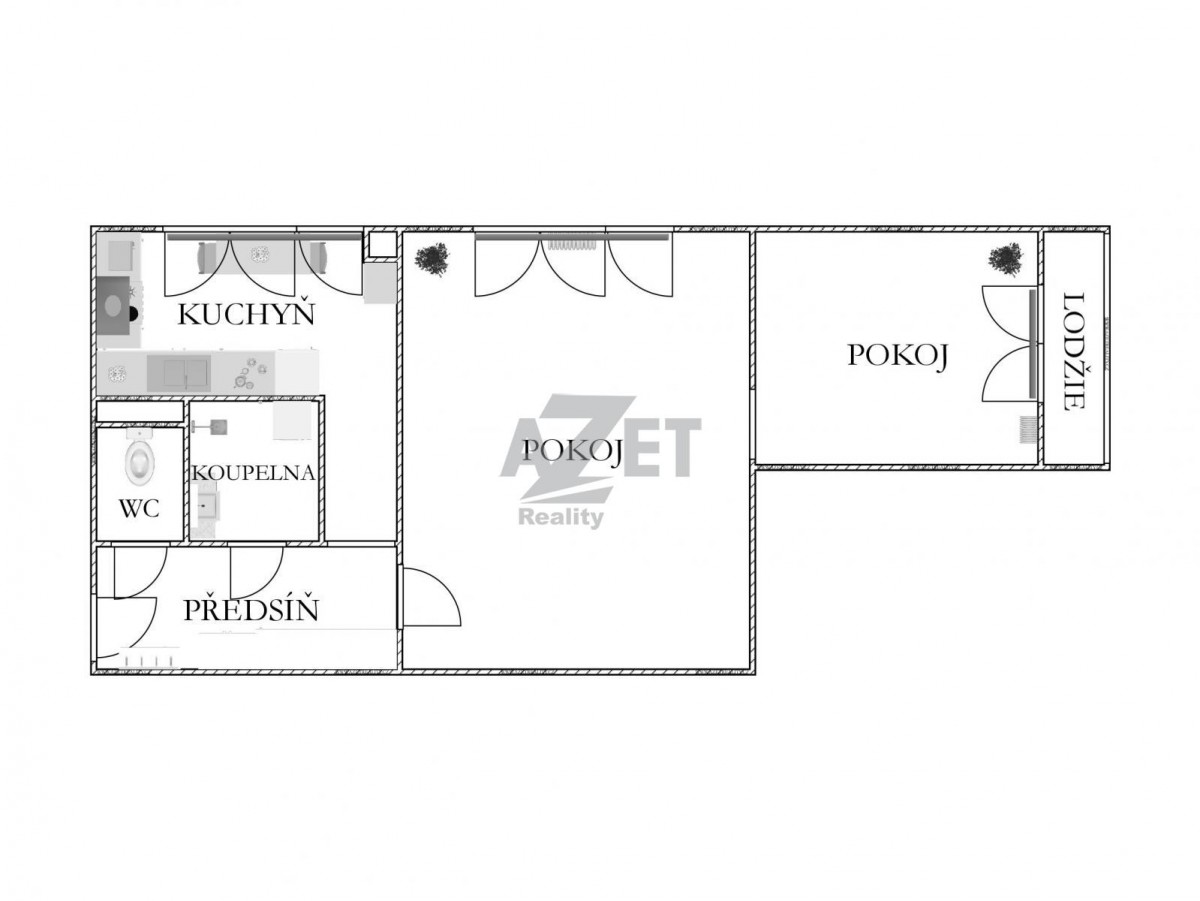
2+1, 49 m2, panelová, OV, 10. podlaží
Popis: Úvod:

Naše společnost Vám v zastoupení majitele nabízí byt v osobním vlastnictví po zdařilé rekonstrukci (2017) se zasklenou lodžií v 10. nadzemním podlaží z dvanácti. Velmi žádaná a plná zeleně lokalita Ostravy - Hrab...ůvky. Nízké měsíční náklady 3553, - Kč + každoroční přeplatky za vyúčtování tepla a vody, cca 5000, - Kč. Průchozí pokoje. V obou obývacích pokojích jsou položeny koberce na původních parketách. Plastová okna se žaluziemi a parapety. Vstup na zasklenou lodžii z ložnice s moc hezkým výhledem na Beskydy (jihovýchodní strana). Výstup z výtahů přímo na patře. Součástí nabídky jsou veškeré úložné prostory (nábytek) v předsíni + kuchyňská linka se spotřebiči.

Rozsáhlá rekonstrukce 2017:

Keramicky obložená koupelna na panelovém jádře s prostorným sprchovacím koutem a vyhrazeným místem pro pračku, samostatné sociální zařízení WC Kombi, nové podlahy z nášlapného PVC na nivelační stěrce v předsíni a kuchyni, elektrické rozvody v mědi, protipožární - bezpečnostní vstupní dveře, úložné prostory v předsíni, rohová kuchyňská linka se spotřebičí a spíží, omítky, výmalba, napojení na mobilní klimatizaci a satelit, internetové připojení PODA - optický kabel.

Plochy místností:

Obývací pokoj - 17. 30 m2
Ložnice - 11. 60 m2
Kuchyň - 8. 47 m2
Předsíň - 4. 32 m2
sociální zařízení WC - 1. 01 m2
Koupelna - 2. 15 m2
Spíž - 0. 24 m2
Lodžie - 3. 16 m2
Sklep - 1. 00 m2
Celkem - 49, 25 m2

Revitalizace obytného domu:

Fasáda, zateplení, plášť střechy, 2 x výtah, kamerový systém, vstupní vchod s poštovními schránkami.
Úvěr na revitalizaci vchodu byl splacen a ukončen v roce 2022.

Závěr:

Nemovitost je k dispozici ihned. Maximální občanská vybavenost ve všech směrech. Doporučujeme Vám prohlídku. Průkaz energetické náročnosti v energetické třídě D. Finanční poradenství zajistíme zdarma s výhodným úročením. Pro více informací kontaktujte našeho makléře. Těšíme se na Vaší navštěvu.
  • Vložení inzerátu:
    7.10.2023
  • Kód:
    1175
  • Typ nemovitosti:
    Byt
  • Typ budovy:
    Panelová
  • Dispozice:
    2+1
  • Vlastnictví:
    OV
  • Podlaží:
    10
  • Podlahová plocha:
    49 m2
  • Lodžie:
    3 m2
  • Sklep:
    1 m2
  • Stav objektu:
    Po rekonstrukci
  • Bezbariérový byt:
    Ano
  • Telekomunikace:
    Internet, Satelit, Kabelová televize
  • Voda:
    dálkový vodovod
  • Elektřina:
    230 V
  • Doprava:
    silnice, dálnice, MHD, autobus, vlak
  • Topeni:
    ústřední dálkové
  • Plyn:
    plynovod
  • Odpad:
    kanalizace
  • Komunikace:
    asfaltová
  • Bezbariérový přístup:
    Ano
  • Energetická náročnost:
    D - Méne úsporná
  • Podle vyhlášky:
    c. 148/2007 Sb
  • Ukazatel náročnosti:
    128 kWh/m2
  • Nabídky v okolí:

Podobné nabídky v okolí

Lokalita: Krestova 1301, Hrabůvka, Ostrava, okres Ostrava-město, Česká republika Krestova 1301, Hrabůvka, Ostrava, okr. Ostrava-město