• Sledovat cenu
  •  

Zasílání upozornění emailem:

Prodej bytu 2+1, 48 m2 - Ppor. Příhody, Vlašim, okr. Benešov (již není v nabídce)

Cena: 2 500 000 Kč
Stav:archiv
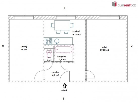
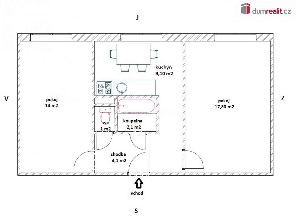
2+1, 48 m2, cihlová, OV, 1. podlaží
Popis: uvedená cena včetně právního servisu a odměny RK. Dumrealit. cz Vám nabízí prodej slunného bytu v OV (osobní vlastnictví), v ulici Ppor. příhody ve Vlašimi. Jedná se o byt 2+1, 48... m² podlahové plochy, nacházející se v 1. NP (první nadzemní patro) z celkových 4 ve zděném domě bez výtahu. Dispozice: z chodby jsou samostatné vstupy do všech místností - dvou pokojů, kuchyně, koupelny, sociální zařízení WC. Byt je v původním stavu, bez dosavadních rekonstrukcí. Okna dřevěná, orientace všech oken na jižní stranu. Ohřev vody a vytápění je centrální - plynová kotelna v domě. K bytu náleží sklepní koje 1, 8 m². Před cca 15 lety proběhlo částečné zateplení fasády, plánovaná inovace. V r. 2017 byla měněná celá střecha, včetně dřevních konstrukcí. Možnost parkování před domem. Lokalita, ve které se byt nabízí je klidná, plná zeleně, v těsné blízkosti ZŠ, MŠ, obchod s potravinami, autobusová zastávka, dětské hřiště, velký sportovní areál, pár minut do přírody… Vlašim poskytuje plnou občanskou vybavenost s dobrou občanskou dostupností na Prahu vlakem, autem, autobusem. Byt je vhodný taktéž jako investiční nemovitost. Doporučuji osobní prohlídku! Možnost financování hypotékou, kterou pro Vás rádi zdarma zajistíme. Ev. číslo: 650844. Energetický štítek: D (276 kWh/m2/rok).
  • Vložení inzerátu:
    24.4.2025
  • Kód:
    3977702
  • Typ nemovitosti:
    Byt
  • Typ budovy:
    Cihlová
  • Dispozice:
    2+1
  • Vlastnictví:
    OV
  • Podlaží:
    1
  • Podlahová plocha:
    48 m2
  • Sklep:
    Ano
  • Stav objektu:
    Dobrý
  • Energetická náročnost:
    D - Méne úsporná
  • Ukazatel náročnosti:
    276 kWh/m2
  • Nabídky v okolí:
  • Informace o obci:
    Obec Vlašim má 11956 obyvatel, z toho 8385 v produktivním věku.
    V obci se nachází pošta.
    V obci se nachází škola, popř. školka.
    V obci se nachází zdravotní zařízení.
    V obci je rozvod kanalizace.
    V obci je rozvod městské vody.
    V obci je rozvod plynu.

Podobné nabídky v okolí

Lokalita: Ppor. Příhody , Vlašim, okres Benešov, Česká republika Ppor. Příhody, Vlašim, okr. Benešov