• Sledovat cenu
  •  

Zasílání upozornění emailem:

Prodej bytu 2+1, 45 m2 - Václava Košaře, Ostrava, okr. Ostrava-město

Cena: 2 980 000 Kč
Stav:Volný
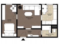
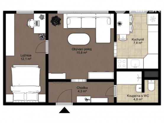
2+1, 45 m2, panelová, OV, 2. podlaží
Popis: Nabízíme k prodeji byt v osobním vlastnictví o dispozici 2+1 v klidné a příjemné lokalitě Václava Košaře v Ostravě - Dubině.
Tento dobře udržovaný byt o velikosti 45 m² se nachází ve... druhém podlaží panelového domu bez výtahu. Ideální dispozice poskytuje prostorný obývací pokoj, ložnici, kuchyň, koupelnu s sociální zařízení WC a předsíň. Byt je vhodný jako investice k pronájmu, nebo pro mladou rodinu. Nabízíme Vám skvělou příležitost bydlet v klidné a příjemné lokalitě s dobrou občanskou dostupností a veškerou občanskou vybaveností v okolí.
Pokud Vás tato nabídka zaujala natolik, že byste se rádi dozvěděli více informací, zavolejte mi, nebo napište a já vám sdělím další podrobnosti. Pokud jste si nevybrali z uveřejněné nabídky, zadejte nám prosím Vaši poptávku a my se pokusíme najít odpovídající nemovitost.
  • Vložení inzerátu:
    15.4.2026
  • Kód:
    OV220247
  • K dispozici od:
    0.0.0
  • Typ nemovitosti:
    Byt
  • Typ budovy:
    Panelová
  • Dispozice:
    2+1
  • Vlastnictví:
    OV
  • Podlaží:
    2
  • Podlahová plocha:
    45 m2
  • Sklep:
    2 m2
  • Stav objektu:
    Dobrý
  • Umístění objektu:
    Sídliště
  • Voda:
    dálkový vodovod
  • Elektřina:
    230 V
  • Doprava:
    silnice, MHD
  • Topeni:
    ústřední dálkové
  • Plyn:
    plynovod
  • Odpad:
    kanalizace
  • Komunikace:
    asfaltová
  • Energetická náročnost:
    G - Mimořádne nehospodárná
  • Nabídky v okolí:
  • Informace o obci:
    Obec Ostrava má 303609 obyvatel, z toho 212976 v produktivním věku.
    V obci se nachází pošta.
    V obci se nachází škola, popř. školka.
    V obci se nachází zdravotní zařízení.
    V obci je rozvod kanalizace.
    V obci je rozvod městské vody.
    V obci je rozvod plynu.
Lokalita: Václava Košaře , Ostrava, okres Ostrava-město, Česká republika Václava Košaře, Ostrava, okr. Ostrava-město



Volná pracovní místa ExpertPrace.cz
  • Objednání prohlídky a více informací
  •  
  • Poslat na e-mail
  •  

Zasílání odkazu na realitu emailem: