• Sledovat cenu
  •  

Zasílání upozornění emailem:

Prodej bytu 2+1, 44 m2 - Pod Skalkou, Přerov

Cena: 2 700 000 Kč
Stav:Volný
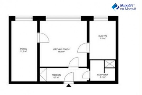
2+1, 44 m2, panelová, OV, 2. podlaží
Popis: Tato nabídka, kterou pro vás nyní mám ke koupi, může být velice zajímavá zejména pro zájemce, kteří by rádi koupili byt jako investici, ať už za účelem pronájmu, rekonstrukce dle vlastních představ nebo pro vlastní bytov...ou potřebu.

Byt se nachází ve 2. NP (druhé nadzemní patro) panelového domu včetně výtahu v okrajové části města Předmostí, odkud je velice dobrá dopravní dostupnost nejen do centra, ale třeba i pro dojíždění do zaměstnání do Olomouce, kam dojedete cca během 20 minut.
Poblíž tohoto sídliště je i nákupní zóna na ulici Lipnícká , přímo naproti domu je MŠ, poblíž ZŠ, sportoviště a další občanská vybavenost.

Byt je v původním stavu, dům po částečné revitalizaci, okna plastová se žaluziemi orientována na jižní stranu. Měsíční náklady (zálohy na teplo, vodu, FO a další služby) aktulně činí 3 829 Kč (nastaveno pro tři osoby).

Pokud byste chtěli byt koupit a zatím pronajímat, tak můžete mít nájemné ihned , a to bez jakýchkoli nákladů na rekonstrukci, ačkoli je byt ve stavu původním (s umakartovým jádrem). A zajímá vás proč? Protože v bytě bydlí už několik let velice solidní pracující nájemce s výbornou platební morálkou (nájemní smlouva sice už skončila, ale v případě zájmu můžete uzavřít novou, pokud ne, tak nájemce bude mít zajištěno bydlení a vystěhuje se v požadovaném termínu). Může to být ideální příležitost , pokud chcete koupit byt například pro vaše děti nebo se zajistit touto investicí na stáří.

Pokud vás tato nabídka zaujala, kontaktujte mne pro více info a objednání prohlídky. V případě více zájemců si majitelka vyhrazuje právo výběru (například způsob financování, nabídková cena atd. )
  • Vložení inzerátu:
    19.11.2025
  • Kód:
    21666
  • K dispozici od:
    0.0.0
  • Typ nemovitosti:
    Byt
  • Typ budovy:
    Panelová
  • Dispozice:
    2+1
  • Vlastnictví:
    OV
  • Podlaží:
    2
  • Podlahová plocha:
    44 m2
  • Sklep:
    2 m2
  • Stav objektu:
    Dobrý
  • Voda:
    dálkový vodovod
  • Elektřina:
    230 V
  • Topeni:
    ústřední dálkové
  • Plyn:
    plynovod
  • Odpad:
    kanalizace
  • Energetická náročnost:
    G - Mimořádne nehospodárná
  • Nabídky v okolí:
  • Informace o obci:
    Obec Přerov má 45778 obyvatel, z toho 31830 v produktivním věku.
    V obci se nachází pošta.
    V obci se nachází škola, popř. školka.
    V obci se nachází zdravotní zařízení.
    V obci je rozvod kanalizace.
    V obci je rozvod městské vody.
    V obci je rozvod plynu.
Lokalita: Pod Skalkou , Přerov, okres Přerov, Česká republika Pod Skalkou, Přerov

Kontakt

Bc. Jarmila Neubauerová



Volná pracovní místa ExpertPrace.cz
  • Objednání prohlídky a více informací
  •  
  • Poslat na e-mail
  •  

Zasílání odkazu na realitu emailem: