• Sledovat cenu
  •  

Zasílání upozornění emailem:

Prodej bytu 2+1, 44 m2 - Horymírova, Ostrava, okr. Ostrava-město (již není v nabídce)

Cena: 1 899 000 Kč
Stav:archiv
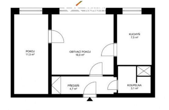
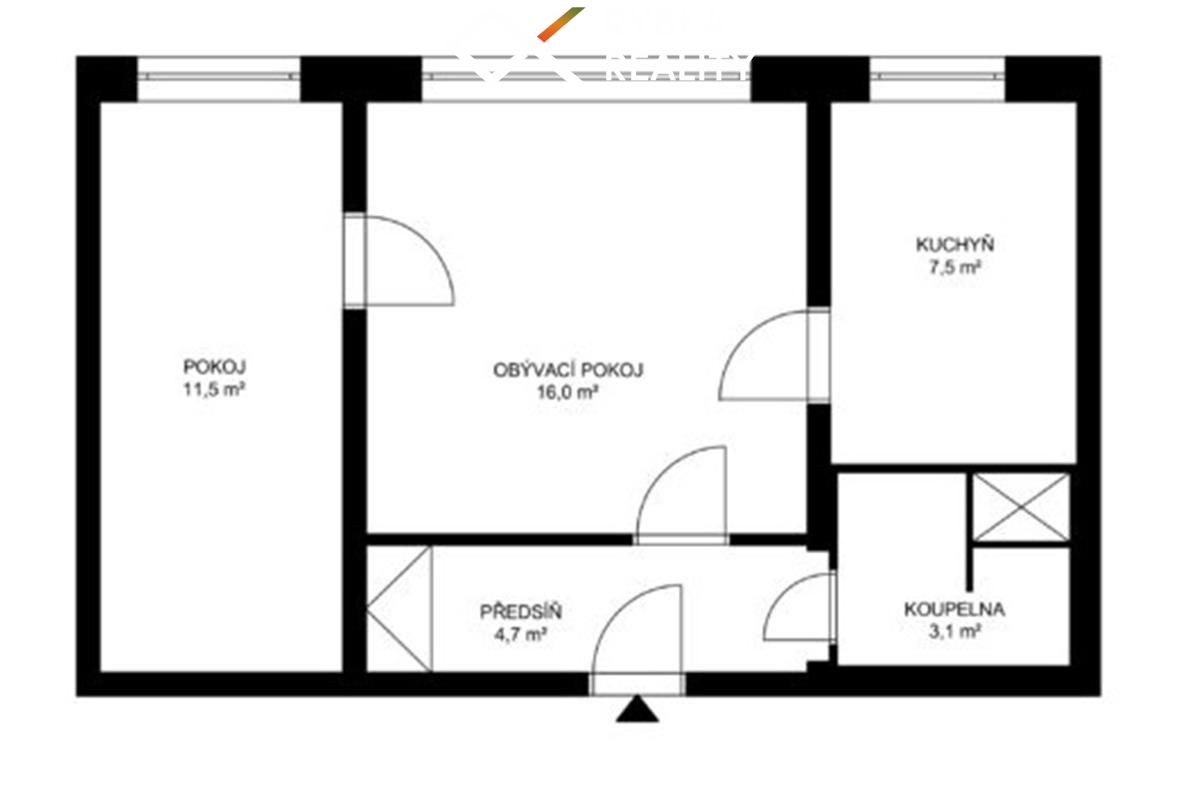
2+1, 44 m2, panelová, OV, 3. podlaží
Popis: Ve výhradním zastoupení majitele nabízíme prodej bytu v osobním vlastnictví 2+1 v 3. NP (třetí nadzemní patro)/6. NP (šesté nadzemní patro) o výměře 44 m2 na ul. Horymírova... v Ostravě - Zábřehu. V bytě proběhly menší úpravy, vhodný k další rekonstrukci dle vlastních představ. Byt je v udržovaném stavu. Po dohodě s majitelem je možno ponechat nějaké vybavení. Veškerá občanská vybavenost v dostupnosti. V okolí dostatek zeleně, poblíž řeka Odra. Financování nemovitosti Vám zajistí naše hypoteční centrum. Doporučujeme Vám prohlídku.
  • Vložení inzerátu:
    29.6.2021
  • Kód:
    0818
  • Typ nemovitosti:
    Byt
  • Typ budovy:
    Panelová
  • Dispozice:
    2+1
  • Vlastnictví:
    OV
  • Podlaží:
    3
  • Podlahová plocha:
    44 m2
  • Stav objektu:
    Velmi dobrý
  • Umístění objektu:
    Centrum
  • Telekomunikace:
    Internet, Kabelové rozvody
  • Doprava:
    silnice, dálnice, MHD, autobus, vlak
  • Topeni:
    ústřední dálkové
  • Komunikace:
    asfaltová
  • Energetická náročnost:
    G - Mimořádne nehospodárná
  • Nabídky v okolí:
  • Informace o obci:
    Obec Ostrava má 303609 obyvatel, z toho 212976 v produktivním věku.
    V obci se nachází pošta.
    V obci se nachází škola, popř. školka.
    V obci se nachází zdravotní zařízení.
    V obci je rozvod kanalizace.
    V obci je rozvod městské vody.
    V obci je rozvod plynu.

Podobné nabídky v okolí

Lokalita: Horymírova , Ostrava, okres Ostrava-město, Česká republika Horymírova, Ostrava, okr. Ostrava-město