• Sledovat cenu
  •  

Zasílání upozornění emailem:

Prodej bytu 2+1, 44 m2 - Josefa Černíka, Luhačovice, okr. Zlín

Cena: 3 700 000 Kč
Stav:Volný
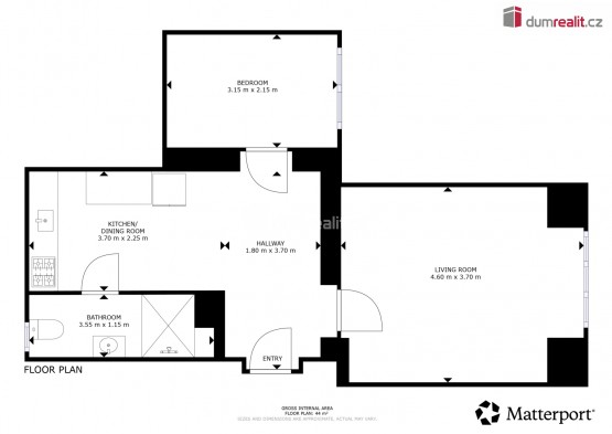
2+1, 44 m2, cihlová, OV, 2. podlaží
Popis: exkluzivní prodej bytu 2 +1 anebo 3 +Kk ve zděné lázeňské vile v moc hezké lokalitě Luhačovic.
Byt se nachází ve 2. nadzemním podlaží a vyplňuje celý východní půdorys prvorepublikové vily o 6 - ti bytech. Rukopis a atmo...sféra vily je datována do meziválečných let.
Byt prošel před třemi lety kompletní rekonstrukcí - má nové stropy, nové podlahy, komplet elektroinstalaci, nové omítky, nová okna a zateplení ze severní strany. Topení je zajištěno stropními elektrickými infrapanely.
Byt je vybavený velice vkusným nábytkem a také spotřebiči ( lednice, pračka, elektrický sporák s troubou ).
Cena převodu zahrnuje i vybavení a zařízení, které bylo pořízeno na míru a jako celek působí velice útulným dojmem.

Budova nyní prochází stavebním legalizačním procesem. Je podána žádost na změnu užívání a řešení parkování.
Poloha a lokalita bydlení je nezaměnitelná ! Pár kroků od lázeňského parku, dostupnost do centra a také do volné přírody.
Luhačovice jsou skvostné místo na léčení ducha a trávení volného času na mnoho způsobů.
Umístění bytu vybízí jak k trvalému bydlení, tak k rekreaci či k velice žádaným investičním pronájmům.
Klíče k prohlídkám jsou u makléřky v RK . Doporučuji vřele k prohlídkám Ev. číslo: 652506. Energetický štítek: G (485 kWh/m2/rok).
  • Vložení inzerátu:
    22.9.2025
  • Kód:
    3990975
  • Typ nemovitosti:
    Byt
  • Typ budovy:
    Cihlová
  • Dispozice:
    2+1
  • Vlastnictví:
    OV
  • Podlaží:
    2
  • Podlahová plocha:
    44 m2
  • Sklep:
    Ano
  • Stav objektu:
    Dobrý
  • Zařízený:
    Ano
  • Energetická náročnost:
    G - Mimořádne nehospodárná
  • Ukazatel náročnosti:
    485 kWh/m2
  • Nabídky v okolí:
  • Informace o obci:
    Obec Luhačovice má 5247 obyvatel, z toho 3660 v produktivním věku.
    V obci se nachází pošta.
    V obci se nachází škola, popř. školka.
    V obci se nachází zdravotní zařízení.
    V obci je rozvod kanalizace.
    V obci je rozvod městské vody.
    V obci je rozvod plynu.
Lokalita: Josefa Černíka , Luhačovice, okres Zlín, Česká republika Josefa Černíka, Luhačovice, okr. Zlín

Kontakt

Ing. Karla Valčíková
Objednání prohlídky a více informací


Podobné nabídky v okolí


  • Objednání prohlídky a více informací
  •  
  • Poslat na e-mail
  •  

Zasílání odkazu na realitu emailem: