• Sledovat cenu
  •  

Zasílání upozornění emailem:

Prodej bytu 1+kk, 40 m2 - Okružní, Humpolec, okr. Pelhřimov

Cena: 3 291 750 Kč
Stav:Volný
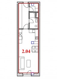
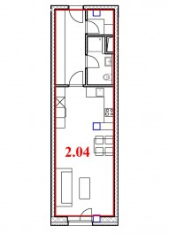
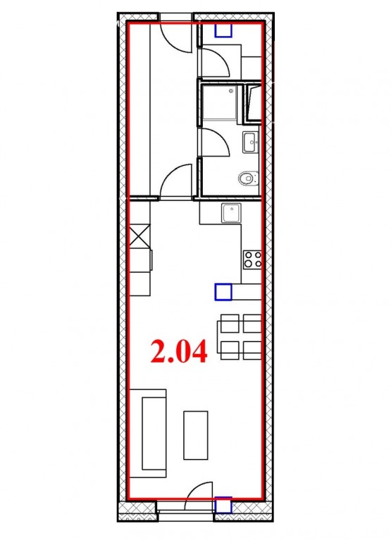
1+kk, 40 m2, skeletová, OV, 2. podlaží
Popis: Ve výhradním zastoupení investore nabízíme k prodeji prostorný apartmán 1+kk v nově budovaném polyfunkčním objektu, který tvoří novou dominantu na nároží významných ulic. Roháče...k Humpolec poskytuje ideální podmínky pro komfortní užívání s důrazem na energetickou úspornost a minimalizaci provozních nákladů.
Projekt Roháček nabízí velkou flexibilitu v úpravách a přizpůsobeních dle specifických přání klientů. Možnost spojení jednotek umožňuje vytvoření prostornějších apartmánů či komerčních jednotek, které lze využít třeba jako apartmány, studia, kanceláře, ordinace či specializované vzorkovny. Možnost přikoupení parkovacího stání a sklepní kóje na patře.
Strategická poloha v rozvíjejícím se Humpolci, nedaleko průmyslových center jako je CTP Park Humpolec a Agrostroj Pelhřimov, činí z projektu Roháček atraktivní investiční možnost s vysokým potenciálem pro nadprůměrné zhodnocení.


Dispozice: vstupní chodba (7, 9 m²), pokoj s kuchyňským koutem (26, 2 m²), koupelna s sociální zařízení WC (3, 5 m²), komora (2, 4 m²)
  • Vložení inzerátu:
    7.1.2026
  • Kód:
    D/RSB/170/22-4
  • K dispozici od:
    0.0.0
  • Typ nemovitosti:
    Byt
  • Typ budovy:
    Skeletová
  • Dispozice:
    1+kk
  • Vlastnictví:
    OV
  • Podlaží:
    2
  • Podlahová plocha:
    40 m2
  • Stav objektu:
    Ve výstavbě
  • Voda:
    dálkový vodovod
  • Topeni:
    ústřední elektrické
  • Odpad:
    kanalizace
  • Energetická náročnost:
    B - Velmi úsporná
  • Podle vyhlášky:
    c. 78/2013 Sb.
  • Ukazatel náročnosti:
    75 kWh/m2
  • Nabídky v okolí:
  • Informace o obci:
    Obec Humpolec má 11104 obyvatel, z toho 7500 v produktivním věku.
    V obci se nachází pošta.
    V obci se nachází škola, popř. školka.
    V obci se nachází zdravotní zařízení.
    V obci je rozvod kanalizace.
    V obci je rozvod městské vody.
    V obci je rozvod plynu.
Lokalita: Okružní , Humpolec, okres Pelhřimov, Česká republika Okružní, Humpolec, okr. Pelhřimov

Kontakt

Mirka Jakubcová


Podobné nabídky v okolí


Volná pracovní místa ExpertPrace.cz
  • Objednání prohlídky a více informací
  •  
  • Poslat na e-mail
  •  

Zasílání odkazu na realitu emailem: