• Sledovat cenu
  •  

Zasílání upozornění emailem:

Prodej bytu 1+kk, 38 m2 - Komárovská, Brno, okr. Brno-město

Cena: 6 113 130 Kč
Stav:Volný
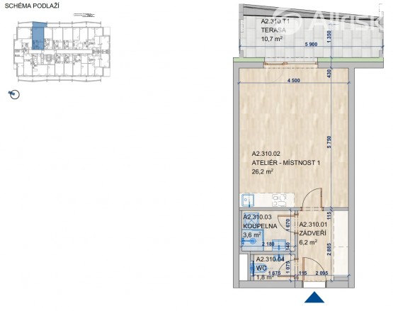
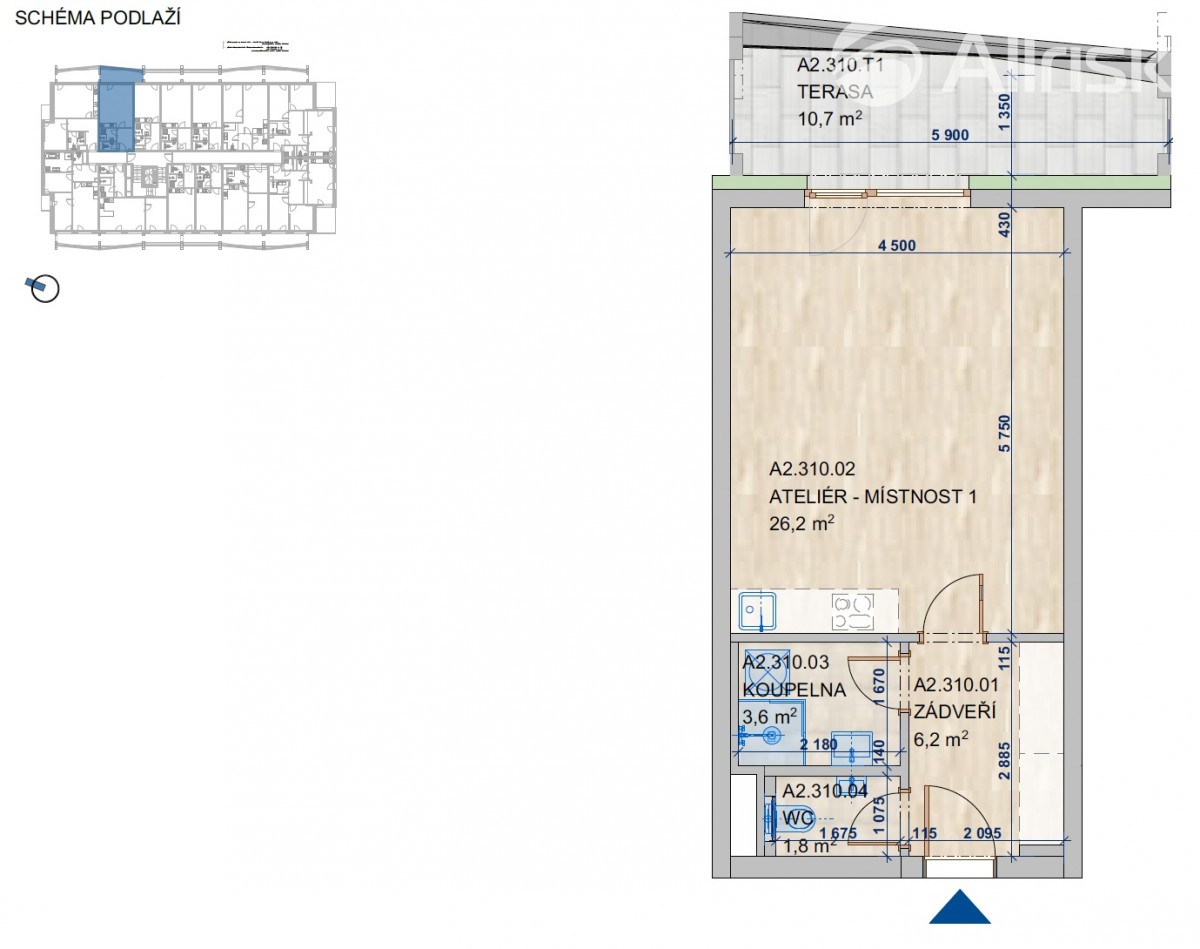
1+kk, 38 m2, skeletová, OV, 3. podlaží
Popis: Najděte svůj nový domov v Realitním projektu roku 2023 v kategorii cena veřejnosti. Allrisk MERIDIEM vytváří jedinečné místo nadčasového životního stylu pro podnikání i rodinné bydlení vznikající mezi ulicemi Svatopetrská a ...Komárovská v Brně. Je součástí unikátní a největší urbanistické restrukturalizace nové jižní čtvrti Trnitá v celé historii města. Jedná se o polyfunkční objekt s praktickým rozmístěním jednotlivých částí. Projekt se skládá ze tří základních objektů A1, A2, A3 a B. Celý komplex vytváří nové území s výraznou dominantou a celkově utváří nový funkční veřejný prostor. Allrisk MERIDIEM přináší novou podobu moderního a nadčasového bydlení a životního stylu celkově.

V tomto projektu nabízíme nízkoenergetický ateliér 1+kk s terasou, který je umístěn ve 3. nadzemním podlaží nového polyfunkčního domu. Ateliér má plochu 39 m2. Byt je oddělen od společné chodby zádveřím, ze kterého je přístup na samostatné sociální zařízení WC, do koupelny vybavené sprchovým koutem, umyvadlem, a s prostorem na pračku. Obytná část je prosvětlena francouzským oknem orientovanými východním směrem, kterým vstoupíte na 11m2 terasu. Byt je řešen ve vysokém standardu, který zahrnuje kvalitní podlahy, obklady, dlažby a sanitární předměty v nejlepší kvalitě.

K rezervaci bytu stačí 16 % z celkové ceny, zbylých 84 % se hradí až po vydání kolaudačního rozhodnutí (do 30. 9. 2025).
Byt lze využit k vlastnímu bydlení nebo jako investici, spojenou s následným pronájmem.

v projektu také najdete:
* 3m výšky stropu 
* příprava na chytrou domácnost
* široké vjezdy do garáží
* sklepní koje jsou přímo u parkovacích stání
* příprava na wallbox ( el. nabíjení aut)
* klimatizace a venkovní žaluzie ve všech jednotkách


Svojí polohou je lokalita Allrisk MERIDIEM v docházkové vzdálenosti historického centra města Brna i rekreačního a relaxačního vyžití v podobě parků, koupání v biotopu a sportovních hřišť pro děti i dospělé. Pro aktivní odpočinek je zde cyklostezka podél řeky Svratky.
Perfektní občanská vybavenost, vše v pěší vzdálenosti, popř. dojezdem MHD z nedaleko nově vzniklé odhlučněné zastávky, zároveň je tu napojení na městský okruh a dálniční síť.

Pro podrobnější informace vyplňte kontaktní formulář nebo navštivte webové stránky. Rádi Vám poté představíme projet ve speciální prezentační místnosti v těsné blízkosti stavby.

Financování možné hypotékou či úvěrem ze stavebního spoření, s jejich vyřízením Vám rádi pomůžeme.
Při koupi nemovitosti na investici vám naše společnost může nabídnout služby zajištění vhodného nájemníka Pokud jste si nevybrali z uveřejněné nabídky, zadejte nám prosím Vaši poptávku a my se pokusíme najít odpovídající nemovitost.
  • Vložení inzerátu:
    22.8.2023
  • Kód:
    BK161466 - 1
  • K dispozici od:
    0.0.0
  • Typ nemovitosti:
    Byt
  • Typ budovy:
    Skeletová
  • Dispozice:
    1+kk
  • Vlastnictví:
    OV
  • Podlaží:
    3
  • Podlahová plocha:
    38 m2
  • Terasa:
    11 m2
  • Stav objektu:
    Ve výstavbě
  • Rok výstavby:
    2025
  • Rok kolaudace:
    2025
  • Umístění objektu:
    Centrum
  • Telekomunikace:
    Internet
  • Voda:
    dálkový vodovod
  • Elektřina:
    230 V
  • Doprava:
    silnice, dálnice, MHD, autobus, vlak
  • Odpad:
    kanalizace
  • Komunikace:
    asfaltová
  • Energetická náročnost:
    B - Velmi úsporná
  • Podle vyhlášky:
    c. 78/2013 Sb.
  • Ukazatel náročnosti:
    29 kWh/m2
  • Nabídky v okolí:
  • Informace o obci:
    Obec Brno má 371371 obyvatel, z toho 256490 v produktivním věku.
    V obci se nachází pošta.
    V obci se nachází škola, popř. školka.
    V obci se nachází zdravotní zařízení.
    V obci je rozvod kanalizace.
    V obci je rozvod městské vody.
    V obci je rozvod plynu.
Lokalita: Komárovská , Brno, okres Brno-město, Česká republika Komárovská, Brno, okr. Brno-město


Podobné nabídky v okolí


Volná pracovní místa ExpertPrace.cz
  • Objednání prohlídky a více informací
  •  
  • Poslat na e-mail
  •  

Zasílání odkazu na realitu emailem: