• Sledovat cenu
  •  

Zasílání upozornění emailem:

Prodej bytu 1+kk, 34 m2 - Prokopova 1, Praha (již není v nabídce)

Cena: 3 490 000 Kč
Stav:archiv
1+kk, 34 m2, cihlová, OV, 2. podlaží
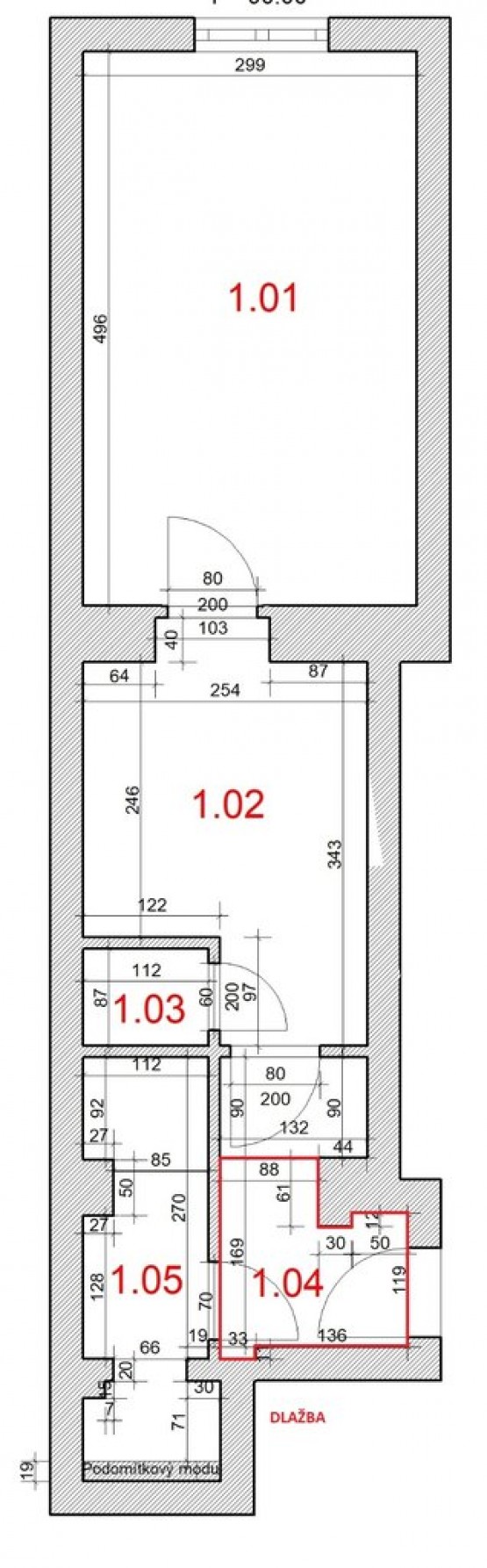
Popis: S ohledem na aktuální situaci v souvislosti s COV (osobní vlastnictví)ID - 19, pro vás nabízíme kromě běžných prohlídek nemovitostí také online (video) prohlídky přes WhatsApp, FaceTime, Skype či Messenger. Půdorys této n...emovitosti je pouze orientační.


K přímému prodeji nabízíme byt před rekonstrukcí o dispozici 1+kk o výměře 34, 11 m2. Nachází se ve druhém patře činžovního domu v samotném srdci historického Žižkova, v ulici Prokopova s vynikající dopravní dostupností do centra. Nedaleko se nachází tramvajová zastávka Lipanská (cca 350 m) a zastávka autobusu Rokycanova (cca 250 m). Pro sportovní a rekreační využití lze užít nedaleký park Parukářka nebo park Vítkov.

Rekonstrukce bytu byla zahájena a vy nyní máte možnost přistoupit k zadávání a vytvořit si tak svoje bydlení snů. Každý má svůj unikátní vkus a nechceme tedy vybírat za vás. V bytě momentálně probíhá rekonstrukce, která bude dokončena ve standartu White Wall – kompletně dokončené bez nášlapných vrstev, sanity, obkladů, dlažby. Můžete si tedy byt následně zařídit přesně podle svého. Dispozičně bude byt řešen jako 1+1, celková podlahová plocha činí 34, 11 m2.

V okolí nalezneme kompletní občanská vybavenost v bezprostředním okolí: mateřské a základní školy, lékaři, lékárny, supermarket Billa a Albert.

V domě jsou naplánované rekonstrukce společných prostor, výtahu, fasády.

Vizualizace interiéru slouží pouze pro představu.
  • Vložení inzerátu:
    1.9.2020
  • Kód:
    00177
  • K dispozici od:
    0.0.0
  • Typ nemovitosti:
    Byt
  • Typ budovy:
    Cihlová
  • Dispozice:
    1+kk
  • Vlastnictví:
    OV
  • Podlaží:
    2
  • Podlahová plocha:
    34 m2
  • Stav objektu:
    Dobrý
  • Umístění objektu:
    Centrum
  • Telekomunikace:
    Telefon, Internet, Satelit, Kabelová televize, Kabelové rozvody
  • Voda:
    dálkový vodovod
  • Elektřina:
    230 V
  • Doprava:
    silnice, MHD
  • Topeni:
    ústřední dálkové
  • Odpad:
    kanalizace
  • Komunikace:
    asfaltová
  • Energetická náročnost:
    G - Mimořádne nehospodárná
  • Nabídky v okolí:
  • Informace o obci:
    Obec Praha má 1257158 obyvatel, z toho 889974 v produktivním věku.
    V obci se nachází pošta.
    V obci se nachází škola, popř. školka.
    V obci se nachází zdravotní zařízení.
    V obci je rozvod kanalizace.
    V obci je rozvod městské vody.
    V obci je rozvod plynu.

Podobné nabídky v okolí

Lokalita: Prokopova 1, Praha, Česká republika Prokopova 1, Praha