• Sledovat cenu
  •  

Zasílání upozornění emailem:

Prodej bytu 1+1, 34 m2 - Michelská, Praha 4, Praha

Cena: 4 190 000 Kč
Stav:Volný
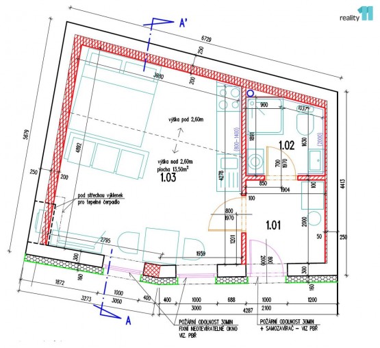
1+1, 34 m2, cihlová, družstevní, 1. podlaží
Popis: Exkluzivně nabízíme k prodeji atypickou ubytovací jednotku o celkové ploše 34 m², která se skládá ze dvou samostatných prostor ve vnitrobloku domu.
Nemovitost se nachází v klidném prostředí nedaleko administrativního centr...a Brumlovka.

Hlavní jednotka má plochu 28 m² a je kolaudována jako ubytovací jednotka. Druhý prostor o velikosti 6 m² je veden jako nebytový prostor a je vhodný například jako sklad, technická místnost nebo zázemí k hlavní jednotce.

Velkou výhodou je prostorná terasa orientovaná na jih, která je k výhradnímu užívání za nájemné 3 000 Kč/ročně.
Na terase je připraven přívod vody i elektřiny, což umožňuje instalaci pergoly, venkovního posezení, krbu či vířivky.
Prostory prošly kompletní rekonstrukcí v roce 2024.

Technické informace:
užitná plocha celkem: 34 m²
hlavní jednotka: 28 m²
nebytový prostor (sklad): 6 m²
podlahové vytápění,
klimatizace,
centrální rekuperace,
zateplení objektu (20 cm polystyren)
francouzská okna s výstupem na terasu,
vysoký strop s možností vestavby patra na spaní.

Součástí je kuchyňská linka s elektrickým sporákem, koupelna se sprchovým koutem a sociální zařízení WC.
Ohřev vody zajišťuje elektrický bojler.

Měsíční náklady:
poplatky: 1 800 Kč
elektřina dle spotřeby
terasa: 3 000 Kč / ročně

Jedná se o zajímavou investiční příležitost vhodnou například k pronájmu.
V případě zájmu je možné zajistit správu a pronájem jednotky.

Výborná dopravní dostupnost – autobusová zastávka Hadovitá přímo u domu, stanice metra C – Kačerov jednu zastávku autobusem.

Parkování je možné na placeném parkovišti nebo prostřednictvím rezidentní parkovací karty přibližně 100 metrů od domu. Ev. číslo: 27760. Energetický štítek: C
Lokalita: Michelská , Praha 4, Praha, Česká republika Michelská, Praha 4, Praha

Kontakt

Darina Smetanová - Pracovní doba: PONDĚLÍ - PÁTEK OD 9:00-17.00 HOD
Objednání prohlídky a více informací


Podobné nabídky v okolí


Volná pracovní místa ExpertPrace.cz
  • Objednání prohlídky a více informací
  •  
  • Poslat na e-mail
  •  

Zasílání odkazu na realitu emailem: