Prodej bytu 1+kk, 28 m2 - Hostýnská, Praha 10, Praha (již není v nabídce)
Cena:
3 390 000 Kč
Stav:archiv
1+kk, 28 m2, panelová, družstevní, 1. podlaží
Popis:
Cena včetně právního servisu a provize. Nabízíme Vám velice dobře dispozičně řešenou světlou, tichou a teplou garsoniéru, s dostatkem úložného prostoru, dále se sklepem v suterénu domu, ve vyhledávané lokalitě s vynikaj...ící dostupností centra Prahy, přitom obklopenou vzrostlou zelení. 2 minuty od domu BUS, na metro Strašnická jede pouhé 3 minuty !
Panelový dům po revitalizaci s již vyzděnými koupelnami a sociální zařízení WC, zateplená nová fasáda, plastová okna, nové rozvody, nové 2 výtahy, opravená střecha, nové vstupní dveře i čistý interiér celého domu. Rekonstrukcí tohoto bytu je možné získat velice příjemné bydlení vhodné pro jednu osobu. Byt se nachází ve zvýšeném přízemí (okno ve výši 2, 20 m ), bezbariérový vstup do bytu bočním vchodem domu na čip s využitím dvou nových výtahů nebo hlavní vstup do domu se schodištěm. Výhodou tohoto bytu jsou velice nízké poplatky a díky stoupacímu vedení tepla bytem nemusíte téměř zapínat dálkové topení.
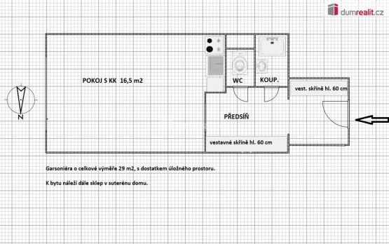
Byt tvoří zádveří s místem pro vestavnou skříň a předsíňovou stěnu, dále předsíň s místem pro další velkou vestavnou skříň a se vstupy do koupelny a sociální zařízení WC zvlášť a dále velice příjemná světlá místnost s výklenkem pro kuchyňskou linku. Byt je zcela vyklizen, připraven pro rekonstrukci.
Velmi moc hezké okolí domu s množstvím stinných zákoutí se vzrostlou zelení nabízejících příjemné posezení i v době parného léta. 5 minut od domu rozlehlý Malešický park s hospůdkou s venkovním posezením, relaxační hřiště, sportoviště, dětská hřiště. Lokalita s veškerou infrastrukturou, lékaři, poliklinika, u domu obchod s potravinami, další obchody a kavárny 3 minuty pohodlnou chůzí od domu. Stanice BUS v místě, klidnou chůzí 10 minut na TRAM (noční spoje).
Družstevní vlastnictví se splacenou anuitou, velice dobře fungující bytové družstvo, možnost podnájmu další osobě. Při financování hypotečním úvěrem nutné ručit jinou nemovitostí.
Velmi doporučuji! Ev. číslo: 650663. Energetický štítek: C
- Vložení inzerátu:
30.3.2025
- Kód:
3968472
- Typ nemovitosti:
Byt
- Typ budovy:
Panelová
- Dispozice:
1+kk
- Vlastnictví:
Družstevní
- Podlaží:
1
- Podlahová plocha:
28 m2
- Sklep:
Ano
- Stav objektu:
Velmi dobrý
- Energetická náročnost:
C - Úsporná
- Nabídky v okolí:
Lokalita:
Hostýnská , Praha 10, Praha, Česká republika
Hostýnská, Praha 10, Praha