Prodej bytu 1+kk, 25 m2 - Ke Koulce, Praha 5, Smíchov, Praha
Cena:
3 154 200 Kč
Stav:Volný
1+kk, 25 m2, cihlová, družstevní, 3. podlaží
Popis:
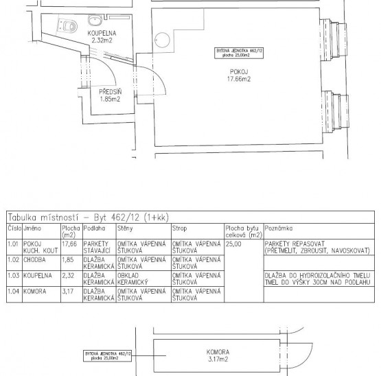
Ve výhradním zastoupení majitele nabízíme ke koupi družstevní byt 1+kk o rozloze 25 m2, který se nachází v 3. nadzemním podlaží třípatrového bytového domu, v žádané ...lokalitě Praha 5 Radlice.
Součástí bytu je také uložný prostor (komora) o rozloze 3, 17 m2.
V místě je velice dobrá dopravní obslužnost i občanská vybavenost. V těsné blízkosti je tramvajová zastávka Křížová.
Byt prochází v současné době celkovou rekonstrukcí, k nastěhování bude od 1. 4. 2021.
- Vložení inzerátu:
11.3.2021
- Kód:
290/4787
- Typ nemovitosti:
Byt
- Typ budovy:
Cihlová
- Dispozice:
1+kk
- Vlastnictví:
Družstevní
- Podlaží:
3
- Podlahová plocha:
25 m2
- Stav objektu:
Po rekonstrukci
- Bezbariérový byt:
Ano
- Doprava:
silnice, MHD, autobus, vlak
- Topeni:
lokální plynové
- Komunikace:
asfaltová
- Bezbariérový přístup:
Ano
- Energetická náročnost:
G - Mimořádne nehospodárná
- Nabídky v okolí: