• Sledovat cenu
  •  

Zasílání upozornění emailem:

Prodej bytu 1+1, 48 m2 - Myslbekova, Ostrava, okr. Ostrava-město (již není v nabídce)

Cena: 1 099 000 Kč
Stav:archiv
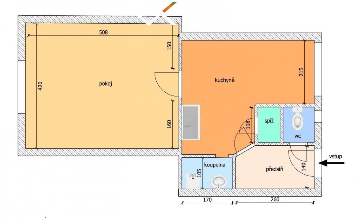
1+1, 48 m2, družstevní, 4. podlaží
Popis: Nabízíme k prodeji byt 1+1 v cihlovém domě a v původním stavu. Byt tvoří prostorný pokoj, kuchyň, koupelna se sprchovým koutem, samostatné sociální zařízení WC, komora a předsíň. ...K bytu rovněž náleží prostorný sklep. Orientace oken je na dvě strany (jihovýchod a severozápad). Ohřev teplé vody je řešen elektrickým bojlerem, vytápění plynovými tělesy. Dům je po kompletní rekonstrukci, plastová okna včetně žaluzií, zateplení, nová fasáda. Vstup do domu i bytu přes bezpečnostní dveře. Příjemné bydlení v solidním domě. Skvěla lokalita s rychlou dostupností do centra, v těsné blízkosti MHD a veškerá občanská vybavenost. Parkování před domem. Byt volný po dohodě. Více napoví nezávazná prohlídka. Financování vám vyřeší náš hypoteční specialista.
  • Vložení inzerátu:
    23.1.2023
  • Kód:
    1720
  • K dispozici od:
    0.0.0
  • Typ nemovitosti:
    Byt
  • Dispozice:
    1+1
  • Vlastnictví:
    Družstevní
  • Podlaží:
    4
  • Podlahová plocha:
    48 m2
  • Stav objektu:
    Velmi dobrý
  • Umístění objektu:
    Centrum
  • Plyn:
    plynovod
  • Odpad:
    kanalizace
  • Energetická náročnost:
    G - Mimořádne nehospodárná
  • Nabídky v okolí:
  • Informace o obci:
    Obec Ostrava má 303609 obyvatel, z toho 212976 v produktivním věku.
    V obci se nachází pošta.
    V obci se nachází škola, popř. školka.
    V obci se nachází zdravotní zařízení.
    V obci je rozvod kanalizace.
    V obci je rozvod městské vody.
    V obci je rozvod plynu.

Podobné nabídky v okolí

Lokalita: Myslbekova , Ostrava, okres Ostrava-město, Česká republika Myslbekova, Ostrava, okr. Ostrava-město