Prodej bytu 1+1, 48 m2 - Gorkého 1470, Moravská Ostrava, Ostrava, okr. Ostrava-město (již není v nabídce)
Cena:
2 649 000 Kč
Stav:archiv
1+1, 48 m2, cihlová, družstevní, 1. podlaží
Popis:
Úvod:
Hledáte prostorný byt v lukrativní lokalitě a ještě k tomu v bezprostřední dosahu centra města? Vyhovovalo by Vám bydlet v nízkopodlažní cihlové zástavbě? Sháníte vhodnou příležitost na investici k pronájmu? Pak jste ...zde správně!
Naše společnost Vám exkluzivně nabízí k prodeji atypický družstevní byt (aktuálně nelze převést do OV (osobní vlastnictví)) 1+1 ve vyvýšeném přízemí. Celková výměra prodávané nemovitosti včetně sklepa činí 57 m2. Velmi žádaná lokalita. Není nutná žádná další větší investice. Díky nadstardantním výměrám bytové jednotky (48 m2) se naskýtá možnost změny dispozice na 2+1 (2+kk) a tudíž i vyšší zhodnocení při případném prodeji po provedené změně. Další přidanou hodnotou tohoto bytu je možnost využívání venkovního dvora na případnou relaxaci, grilování a další činnosti. Společné půdní prostory. Zděné jádro. Vyvýšené stropy - 3, 2 m. El. rozvody v mědi. Voda a odpady v plastu. Plastová okna se žaluziemi a širokými parapety. Protipožární bezpečnostní vstupní dveře. Plovoucí podlaha v obývacím pokoji. V ostatních místnostech keramická dlažba. Koupelna se sprchovým koutem, vyhrazené místo pro pračku, sociální zařízení WC Geberit oddělený příčkou. Kuchyňská linka na míru se spotřebiči (el. trouba, plynový sporák, digestoř) a spíží. Výhled na 2 světové strany (severozápad vs jihovýchod). Připojení k internetové připojeníu a TV (PODA - optický kabel, UPC). Podlahové vytápění a ohřev vody je realizován kondenzačním plynovým kotlem Buderus (2018). Veškerý nábytek v obývacím pokoji je od stávajícího podnájemce, ostatní nábytek v dalších místnostech může být součástí této nabídky. Velkou výhodou této lokality je dostupnost veškeré městské hromadné dopravy a nespočet parkovacích míst. Nabízená nemovitost je k dispozici ihned.
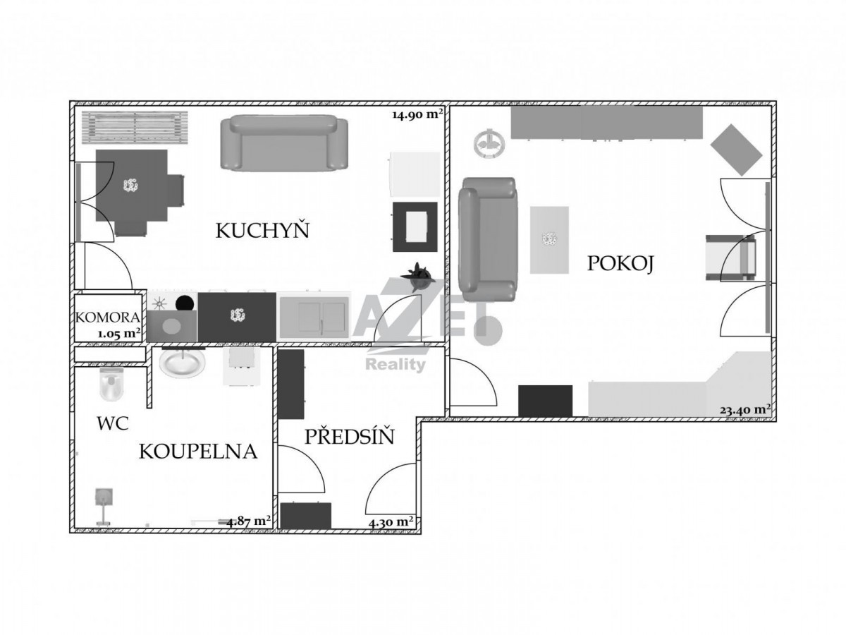
Plochy místností:
Obývací pokoj - 23. 40 m2
Kuchyň - 14. 90 m2
Špíz - 1. 05 m2
Koupelna - 4. 87 m2
Předsíň - 4. 30 m2
Sklep - 8. 35 m2
- - - - - - - - - - - - - - - - - - - - - - - - - - - - - - - - - - - - - - - - - - - - - - -
Celkem 56. 87 m2
Potenciál a přednosti nemovitosti:
1. Žádaná lokalita v bezprostřední blízkosti centra města
2. Nadstandartní výměra na byt 1+1
3. Velmi výhodné zhodnocení při pronájmu
4. Nízkopodlažní cihlová zástavba
5. Dostupnost veškeré MHD
Revitalizace:
Fasáda, venkovní zateplení, vstupní vchod s poštovními schránkami, podlahy na půdě, zateplení stropů ve sklepě, plastová okna se žaluziemi a parapety, střecha.
Závěr:
Doporučujeme Vám prohlídku. Průkaz energetické náročnosti inzerujeme dle zákona v energetické třídě C. Finanční poradenství zajistíme zdarma se zvýhodněným úročením. Pro více informací kontaktujte našeho makléře. Těšíme se na Vaší návštěvu.
- Vložení inzerátu:
15.11.2024
- Kód:
1484
- Typ nemovitosti:
Byt
- Typ budovy:
Cihlová
- Dispozice:
1+1
- Vlastnictví:
Družstevní
- Podlaží:
1
- Podlahová plocha:
48 m2
- Sklep:
9 m2
- Stav objektu:
Po rekonstrukci
- Bezbariérový byt:
Ano
- Telekomunikace:
Internet, Kabelová televize
- Voda:
dálkový vodovod
- Elektřina:
230 V
- Doprava:
silnice, dálnice, MHD, autobus, vlak
- Topeni:
ústřední plynové
- Odpad:
kanalizace
- Komunikace:
asfaltová
- Zařízený:
Ano
- Bezbariérový přístup:
Ano
- Energetická náročnost:
C - Úsporná
- Ukazatel náročnosti:
101 kWh/m2
- Nabídky v okolí: