• Sledovat cenu
  •  

Zasílání upozornění emailem:

Prodej bytu 1+1, 45 m2 - Kolínská, Chvaletice, okr. Pardubice

Cena: 870 000 Kč
Stav:Volný
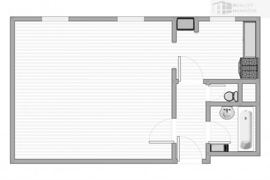
1+1, 45 m2, cihlová, družstevní, 4. podlaží
Popis: Prodej bytu 1+1, CP 45 m2, v ul. Kolínská Chvaletice, ve 4. patře cihlového domu. Byt je v družstevním vlastnictví, s možností převodu do osobního vlastnictví, nepla...títe daň z nabytí nemovitosti a lze řešit hypoteční úvěr. Dispozice bytu: vstupní chodba, s možností vstupu do obývacího pokoje, kuchyňe, kopupelny a samostatného sociální zařízení WC. Velmi nízké náklady na bydlení. K bytu náleží sklep, možnost využívání společné kolárny. Jedná se o klidnou atraktivní lokalitu nedaleko centra města s veškerou občanskou vybaveností. Dobrá dopravní dostupnost - leží na hlavní vlakové trati Pardubice - Praha. Možnost financování hypotečním úvěrem, který nabízíme dle potřeb klienta.
  • Vložení inzerátu:
    10.3.2018
  • Kód:
    2641914
  • Typ nemovitosti:
    Byt
  • Typ budovy:
    Cihlová
  • Dispozice:
    1+1
  • Vlastnictví:
    Družstevní
  • Podlaží:
    4
  • Podlahová plocha:
    45 m2
  • Balkón:
    Ano
  • Lodžie:
    Ano
  • Terasa:
    Ano
  • Stav objektu:
    Dobrý
  • Energetická náročnost:
    D - Méne úsporná
  • Nabídky v okolí:
  • Informace o obci:
    Obec Chvaletice má 3204 obyvatel, z toho 2299 v produktivním věku.
    V obci se nachází pošta.
    V obci se nachází škola, popř. školka.
    V obci se nachází zdravotní zařízení.
    V obci je rozvod kanalizace.
    V obci je rozvod městské vody.
    V obci je rozvod plynu.
Lokalita: Kolínská , Chvaletice, okres Pardubice, Česká republika Kolínská, Chvaletice, okr. Pardubice


Podobné nabídky v okolí


Volná pracovní místa ExpertPrace.cz
  • Objednání prohlídky a více informací
  •  
  • Poslat na e-mail
  •  

Zasílání odkazu na realitu emailem: