• Sledovat cenu
  •  

Zasílání upozornění emailem:

Prodej bytu 1+1, 40 m2 - Pavlovova 2629, Zábřeh, Ostrava, okr. Ostrava-město (již není v nabídce)

Cena: 1 650 000 Kč
Stav:archiv
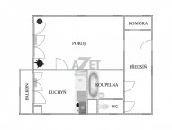
1+1, 40 m2, panelová, OV, 1. podlaží
Popis: Naše společnost Vám nabízí k prodeji byt v osobním vlastnictví se zaskleným balkónem v původním stavu ve vyvýšeném přízemí. Vhodná rekonstrukce dle vlastní představy. Bezbariérový přístup od přízemí až na samotné patro. Zd...ěné jádro. Plastová okna se žaluziemi a parapety. Kombinované podlahy (PVC linoleum, dřevěné, dlažba). Kuchyňská linka s kombinovanou troubou, dřezem a místem pro lednici. Prostorná koupelna se zapuštěnou vanou. Samostatné sociální zařízení WC Kombi. Komora a skříně na uložení věcí v předsíni. Litinové ústřední topení. Bezpečnostní vstupní dveře. Výhled na východní stranu. Na zasklený balkón se vstupuje z kuchyně. Nízké měsíční náklady 2570, - Kč (včetně FO). Optická přípojka na internetové připojení (PODA).

Potenciál a přednosti nemovitosti:

1. Rekonstrukce dle vlastních představ.
2. Vhodná investice na pronájem s převzetím stávajícího nájemce.
3. Zděné bytové jádro.
4. Bezbariérový přístup.
5. Zasklený balkón.
6. Osobní vlastnictví.
7. Bezprostřední dostupnost MHD.

Revitalizace obytného domu:

Kompletní revitalizace obytného domu se nedávno dokončila.
Kamerový systém ve společných prostorách, 2 krát výtahy, nový vstupní vchod (čip) s poštovními schránkami, plastová okna, zapláštění střechy, fasáda, zateplení.

Závěrem:

Velkou výhodou je bezprostřední dostupnost zastávek MHD (2 minuty pěší chůzí) a dostatek parkovacích míst. Maximální občanská vybavenost ve všech směrech. Doporučujeme Vám prohlídku. Advokátní úschova i vypracování kupních smluv v ceně nabídky. Průkaz energetické náročnosti budovy dle zákona ve třídě G. Finanční poradenství zajistíme zdarma se zvýhodněným úročením. Pro více informací kontaktujte našeho makléře. Těšíme se na Vaši návštěvu.
  • Vložení inzerátu:
    6.11.2023
  • Kód:
    1201
  • Typ nemovitosti:
    Byt
  • Typ budovy:
    Panelová
  • Dispozice:
    1+1
  • Vlastnictví:
    OV
  • Podlaží:
    1
  • Podlahová plocha:
    40 m2
  • Balkón:
    3 m2
  • Sklep:
    2 m2
  • Stav objektu:
    Dobrý
  • Bezbariérový byt:
    Ano
  • Telekomunikace:
    Internet, Kabelová televize
  • Voda:
    dálkový vodovod
  • Doprava:
    silnice, dálnice, MHD, autobus, vlak
  • Topeni:
    ústřední dálkové
  • Plyn:
    plynovod
  • Odpad:
    kanalizace
  • Komunikace:
    asfaltová
  • Bezbariérový přístup:
    Ano
  • Energetická náročnost:
    G - Mimořádne nehospodárná
  • Nabídky v okolí:

Podobné nabídky v okolí

Lokalita: Pavlovova 2629, Zábřeh, Ostrava, okres Ostrava-město, Česká republika Pavlovova 2629, Zábřeh, Ostrava, okr. Ostrava-město