• Sledovat cenu
  •  

Zasílání upozornění emailem:

Prodej bytu 1+1, 40 m2 - Slévačská 905, Praha (již není v nabídce)

Cena: 5 100 000 Kč
Stav:archiv
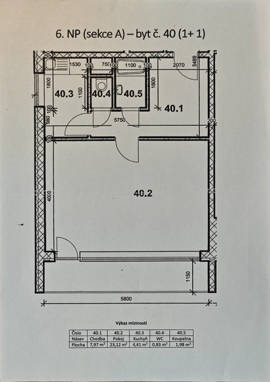
1+1, 40 m2, panelová, OV, 9. podlaží
Popis: Nabízíme k prodeji světlý byt 1+1 o výměře 40m2+ Lodžie 6m2(zasklená) v 9. NP (deváté nadzemní patro) nově rekonstruovaného domu s novými výtahy a zděným sklepem 2..., 5m2. Dům je po kompletní rekonstrukci obvodového pláště(zateplení), oken, výtahů, střechy, sklepů a společných prostor, v celém domě včetně výtahů je kamerový systém, vchodové dveře na čip. Byt je po rekonstrukci se zděným bytovým jádrem, menší kuchyňskou linkou, na radiátorech jsou měřiče, nové rozvody, nová elektřina, plastová okna, podlahové krytiny, nová lodžie s dlažbou a zasklením. Byt má moc hezký výhled do kraje a je orientován na severovýchod. U tohoto bytu je jednoduchou přestavbou možná změna dispozice na 2+kk. Měsíční náklady jsou velice nízké 2700, - Kč + elektřina. Nedaleko domu je škola, školka, hřiště, metro(Rajská zahrada) je v docházkové vzdálenosti, autobusová zastávka u domu, v blízkosti les, Kyjský rybník.

Poznámka k ceně: financování Vám vyřídíme
  • Vložení inzerátu:
    1.3.2024
  • Kód:
    3759944
  • Typ nemovitosti:
    Byt
  • Typ budovy:
    Panelová
  • Dispozice:
    1+1
  • Vlastnictví:
    OV
  • Podlaží:
    9
  • Podlahová plocha:
    40 m2
  • Lodžie:
    6 m2
  • Sklep:
    3 m2
  • Stav objektu:
    Po rekonstrukci
  • Bezbariérový byt:
    Ano
  • Umístění objektu:
    Klidná část
  • Telekomunikace:
    Internet, Kabelová televize, Kabelové rozvody
  • Elektřina:
    230 V
  • Topeni:
    ústřední dálkové
  • Plyn:
    plynovod
  • Bezbariérový přístup:
    Ano
  • Energetická náročnost:
    D - Méne úsporná
  • Nabídky v okolí:
  • Informace o obci:
    Obec Praha má 1257158 obyvatel, z toho 889974 v produktivním věku.
    V obci se nachází pošta.
    V obci se nachází škola, popř. školka.
    V obci se nachází zdravotní zařízení.
    V obci je rozvod kanalizace.
    V obci je rozvod městské vody.
    V obci je rozvod plynu.

Podobné nabídky v okolí

Lokalita: Slévačská 905, Praha, Česká republika Slévačská 905, Praha