• Sledovat cenu
  •  

Zasílání upozornění emailem:

Prodej bytu 1+1, 40 m2 - S. K. Neumanna, Praha 8, Libeň, Praha (již není v nabídce)

Cena: 3 360 000 Kč
Stav:archiv
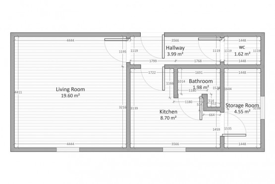
1+1, 40 m2, cihlová, družstevní, 2. podlaží
Popis: Nabízíme k prodeji světlý družstevní byt o dispozici 1+1 a podlahové ploše 40 m2 v příjemné a klidné lokalitě Praha 8 - Libeň, ul. S. K. Neumanna.

Tento byt se nacház...í ve druhém nadzemním podlaží menšího cihlového domu a sestává z obývacího pokoje s vestavěným patrem na spaní, kuchyně, menší koupelny s vanou, samostatné toalety, komory a předsíně. Byt prošel částečnou rekonstrukcí (nový kotel, podlahy, kuchyňská linka). Na podlahách jsou parketová podlaha a linoleum. K bytu také patří sklep (cca 3 m2). Byt je družstevní, v kupní ceně 3. 360. 000, - je již zahrnuta anuita (cca 430. 000, - ; možnost i snížení kupní ceny o tuto částku a anuitu následně splácet postupně). Jedná se o menší družstevní dům s příjemnou zahradou, která slouží k odpočinku jeho obyvatelům.

Lokalita je dobře občansky vybavená, v blízkosti MHD - tramvajová zastávka Okrouhlická, Hercovka či metro Kobylisy v pěší vzdálenosti. Nedaleko příjemný park Dlážděnka.

V případě zájmu o další informace či prohlídku kontaktujte makléře.

Podobné nabídky v okolí

Lokalita: S. K. Neumanna , Praha 8, Libeň, Praha, Česká republika S. K. Neumanna, Praha 8, Libeň, Praha