• Sledovat cenu
  •  

Zasílání upozornění emailem:

Prodej bytu 1+1, 25 m2 - Černý Důl, okr. Trutnov (již není v nabídce)

Cena: 2 890 000 Kč
Stav:archiv
1+1, 25 m2, cihlová, OV, 1. podlaží
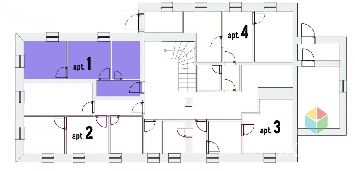
Popis: Apartmán o dispozici 1+1 (ateliér) 25, 7 m2 v Čisté v Černém Dole v Krkonoších, je situován v přízemí rekonstruované chalupy v klidné části obce.
Z kuchyně i ložnice je moc... hezký výhled do zahrady, což zajišťuje naprostý klid. Apartmán se skládá z plně vybavené kuchyně, útulné ložnice s bukovou postelí a prostorné koupelny se sanitárním vybavením na vysoké úrovni (Geberit, Grohe). Okna jsou plastová, vybavená elektricky stahovatelnými předokenními roletami na dálkové ovládání. Je zde vlastní podružný vodoměr a elektroměr, na topení měřáky, regulace teploty termostatem. Vytápění budovy je zajištěno plynovým kondenzačním kotlem. K dispozici je vysokorychlostní internetové připojení. Apartmán se nabízí včetně vybavení.
Budova je kompletně zrekonstruovaná (Porotherm, zateplení minerální vatou + roubený obklad), topení + el. vedení v mědi, použity pouze kvalitní nadstandartní materiály. V každé jednotce je zásuvka na centrální vysavač Husky. Apartmány jsou vybaveny domovními telefony, vstup do budovy zajištěn el. zámkem. Dveře apartmánu lze otevírat kartou. Budova i parkoviště jsou střeženy kamerovým systémem. Objekt je napojen na kanalizaci.
Ke každému apartmánu náleží 1 krát parkovací stání na vlastním pozemku, sdílená lyžárna a podíl na zahradě.
Lze využít možnost pokračování zprostředkovávání krátkodobých pronájmů – je zde stálá klientela, využívají se portály booking, e - chalupy, hotel. cz apod. . .
Obec Černý Důl se rozkládá pod svahy Černé hory mezi Janskými Lázněmi a Vrchlabím. Oblast patří do území Krkonošského národního parku. Městys Černý důl je především rekreačním střediskem. Poloha umožňuje široký výběr lyžařských středisek v okolí. Zastávka skibusu je cca 100m od apartmánu. Vzdálenost skiareálu Černý důl 1, 7 km.
Doporučujeme Vám prohlídku.
Cena k jednání.
  • Vložení inzerátu:
    17.7.2024
  • Kód:
    5894
  • K dispozici od:
    0.0.0
  • Typ nemovitosti:
    Byt
  • Typ budovy:
    Cihlová
  • Dispozice:
    1+1
  • Vlastnictví:
    OV
  • Podlaží:
    1
  • Podlahová plocha:
    25 m2
  • Stav objektu:
    Velmi dobrý
  • Umístění objektu:
    Okraj
  • Elektřina:
    230 V
  • Odpad:
    kanalizace
  • Zařízený:
    Ano
  • Energetická náročnost:
    C - Úsporná
  • Nabídky v okolí:
  • Informace o obci:
    Obec Černý Důl má 760 obyvatel, z toho 533 v produktivním věku.
    V obci se nachází pošta.
    V obci se nachází zdravotní zařízení.
    V obci je rozvod kanalizace.
    V obci je rozvod městské vody.
    V obci je rozvod plynu.

Podobné nabídky v okolí

Lokalita: Černý Důl, okres Trutnov, Česká republika Černý Důl, okr. Trutnov, Královéhradecký kraj