• Sledovat cenu
  •  

Zasílání upozornění emailem:

Pozemek k bydlení 949 m2 - Hořenec , Nezabylice, okr. Chomutov

Cena: 2 087 800 Kč
Stav:Volný
parcela: 949m2
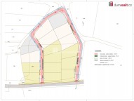
Popis: exkluzivní prodej stavební parcely o rozloze 949 m² v Hořenci u Nezabylic, okres Chomutov. Parcela je dle územního plánu určena k výstavbě rodinného domu. Obec Nezabylice se nachází pouhých 7 km od města Chomutov. V souča...sné době jsou zhotoveny inženýrské sítě - ( rozvody elektřiny, kanalizace a vody ). Veřejné osvětlení a komunikace jsou v současné době v přípravě. Pro velice pěkné a klidné umístění, vřele doporučuji. Financování nemovitosti zajištěno. Více info na dotaz u makléře nabídky. Ev. číslo: 651951. Energetický štítek: G
  • Vložení inzerátu:
    12.11.2025
  • Kód:
    3993534
  • Typ nemovitosti:
    Pozemek k bydlení
  • Energetická náročnost:
    G - Mimořádne nehospodárná
  • Nabídky v okolí:
Lokalita: Hořenec , Nezabylice, okres Chomutov, Česká republika Hořenec , Nezabylice, okr. Chomutov, Ústecký kraj

Kontakt

Lucie Kučerová


Podobné nabídky v okolí


Volná pracovní místa ExpertPrace.cz
  • Objednání prohlídky a více informací
  •  
  • Poslat na e-mail
  •  

Zasílání odkazu na realitu emailem: