• Sledovat cenu
  •  

Zasílání upozornění emailem:

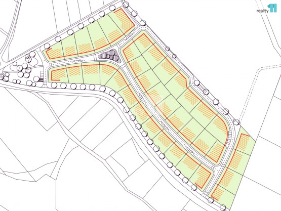
Pozemek k bydlení 918 m2 - Želiv , okr. Pelhřimov (již není v nabídce)

Cena: 1 767 Kč/m2
Stav:archiv
parcela: 918m2
Popis: Dovoluji si nabídnout ke koupi stavební pozemek v obci Želiv. Lokalita Pod Haštalem je nově vznikající části obce. Samotná obec kompletně zajištuje zasíťování jednotlivých pozemků, výstavbu komunikací, chodníků i veřejnéh...o osvětlení. Do konce listopadu roku 2025 budou novým vlastníkům předány parcely včetně přípojek inženýrských sítí (vodovod, kanalizace, elektřina a datový kabel). Lokalita nabízí rozmanité výměry pozemků od 800 do 1200m². Prodej stavebních pozemků bude probíhat formou obálkové metody. Minimální nabídka činí 1760, 60, - Kč za 1 metr čtvereční pozemku. Detaily i pravidla pro podání nabídky Vám rádi vysvětlíme. Termín pro podání nabídek končí 15. 5. 2025 ve 14: 00 hod. Lokalita pod Haštalem se nachází v klidné části obce Želiv. V docházkové vzdálenosti je škola, školka, restaurace i obchody. Želiv je perfektně fungující obec s ideálním zázemím pro rodinný život. Výhodou je také poloha obce. Města Humpolec i Pelhřimov se nachází v dojezdové vzdálenosti 15 minut. Obcí protéká řeka Želivka. Na dohled od parcel stojí vodní nádrž Trnávka, která je oblíbenou destinací v letních měsících (koupání, rybolov i vodní sporty). Nepropásněte tuto jedinečnou příležitost a zajistěte si své místo pro stavbu domu. Pro více informací kontaktujte realitního specialistu. Ev. číslo: 27367.
  • Vložení inzerátu:
    29.4.2025
  • Kód:
    3979562
  • Typ nemovitosti:
    Pozemek k bydlení
  • Umístění objektu:
    Klidná část
  • Nabídky v okolí:
  • Informace o obci:
    Obec Želiv má 1076 obyvatel, z toho 754 v produktivním věku.
    V obci se nachází pošta.
    V obci se nachází škola, popř. školka.
    V obci se nachází zdravotní zařízení.
    V obci je rozvod kanalizace.
    V obci je rozvod městské vody.

Podobné nabídky v okolí

Lokalita: Želiv , okres Pelhřimov, Česká republika Želiv , okr. Pelhřimov, Vysočina