• Sledovat cenu
  •  

Zasílání upozornění emailem:

Pozemek k bydlení 914 m2 - Orlov , Příbram, okr. Příbram (již není v nabídce)

Cena: 3 016 200 Kč
Stav:archiv
parcela: 914m2
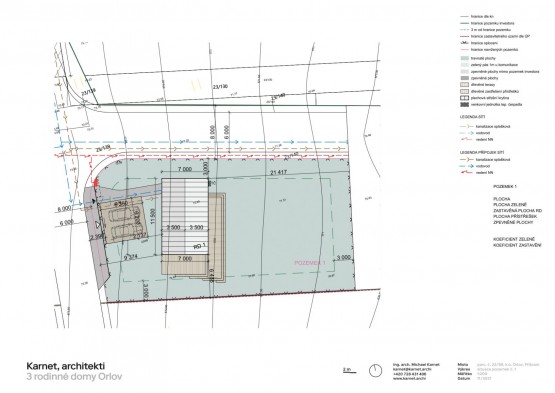
Popis: Prodej tří stavebních pozemků s přístupovou cestou ve velmi žádané lokalitě Příbram - Orlov. Pozemky jsou na moc hezkém místě 200 m od lesa. Ideální pro bydlení - příroda za domem a do města Příbram jede MHD a na Praha ...přímé autobusové spojení / integrovaná doprava /. Na pozemky je zpracována architektonická studie Karnet architekti. Možnost požádat o stavební povolení po vyhotovení stavební dokumentace na dům podle vlastního uvážení. Na požádání nebo při prohlídce pozemků možnost do studie nahlédnout. Po osobním jednání je možnost studii v detailním provedení poslat emailem. Architekti navrhli typ zástavby - obytné přízemí a podkroví. Není nutné dodržet typ domu ze studie.
Pozemek podle plánku č. 1 - výměra 842 m2, cena 2. 778. 600, - Kč.
Pozemek podle plánku č. 2 - výměra 914 m2, cena 3. 016. 200, - Kč.
Pozemek podle plánku č. 3 - výměra 1063 m2, cena 3. 507. 900, - Kč.
Cena pozemků stavebních pozemků je 3. 300, - Kč/1m2. Elektrická přípojka je u pozemků. Ke každému pozemku se ještě kupuje ideální podíl 1/4 příjezdové cesty. Cesta je o celkové výměře 1058 m2. Prodávající - současný majitel zajistí na své náklady vybudování asfaltového povrchu příjezdové cesty a propojku inž. sítí. Bude připravena přípojka na obecní vodovod a tlakovou kanalizaci - zatím příprava, protože 1. SČV zatím nemá kapacitu na připojení. Za podíl na vybudované přístupové cestě zaplatí zájemce ke každému stavebnímu pozemku částku 750. 000, - Kč. U každého stavebního pozemku je plánována na náklady stavebníka studna a jímka. Po navýšení kapacity vodovodu a kanalizace bude možnost připojení na inž. sítě města. Podrobné informace v RK.
  • Vložení inzerátu:
    9.9.2022
  • Kód:
    AR806
  • Typ nemovitosti:
    Pozemek k bydlení
  • Elektřina:
    380 V
  • Doprava:
    silnice, dálnice, MHD, autobus
  • Komunikace:
    asfaltová
  • Bezbariérový přístup:
    Ano
  • Nabídky v okolí:

Podobné nabídky v okolí

Lokalita: Orlov , Příbram, okres Příbram, Česká republika Orlov , Příbram, okr. Příbram, Středočeský kraj