• Sledovat cenu
  •  

Zasílání upozornění emailem:

Pozemek k bydlení 909 m2 - Davídkova, Praha 8, Praha

Cena: 23 928 000 Kč
Stav:Volný
parcela: 909m2
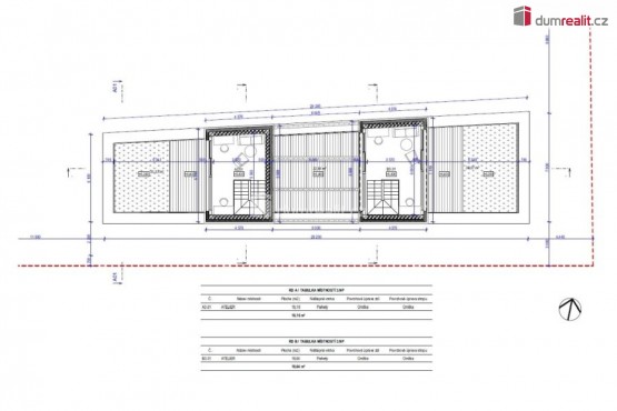
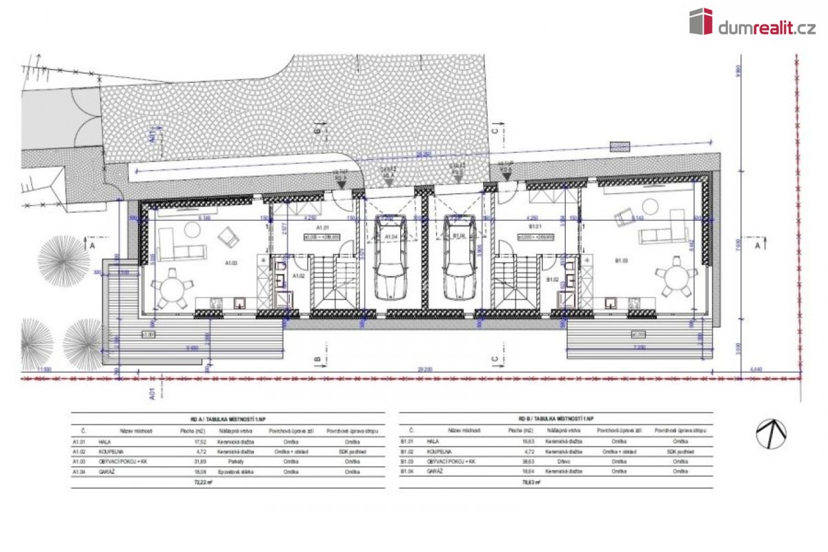
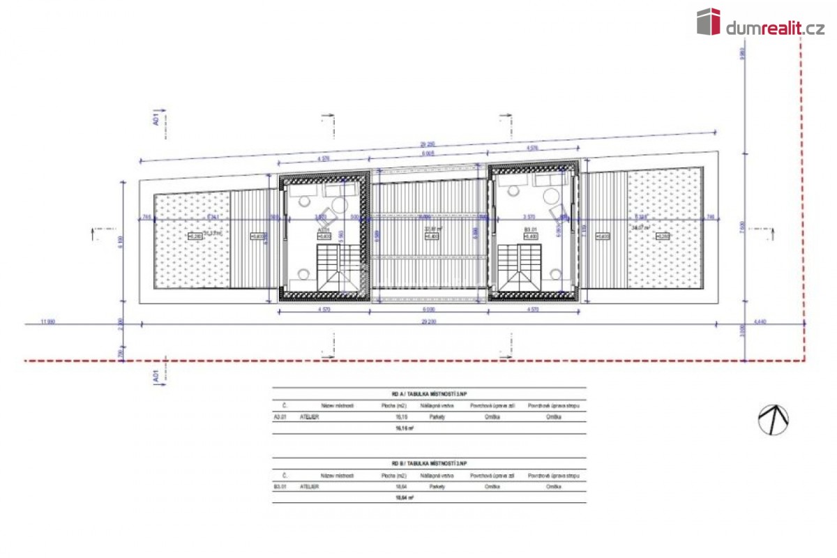
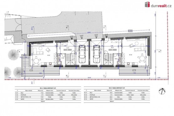
Popis: Cena uvedena včetně provize a právních služeb. . Dumrealit. cz Vám nabízí koupi rovinatého stavebního pozemku plochy 909m² určeného pro výstavbu dvojdomu o užitné ploše 333, 5m², se sklepními prostory 166, 1m² a střešními t...erasami plochy 102, 2m². Pozemek je obdélníkového tvaru s plánovaným vjezdem z ulice Davídkova, Praha 8. Nachází se na kopci v místě, kde svah pozvolna přechází do roviny. Na výstavbu dvojdomu již bylo v roce 2025 vydáno územní rozhodnutí. Směrově je situován zejména na jih a sever. Dům "A" má užitnou plochu 159, 0m², plus sklepní prostory 78, 8m² a střešní terasy 47, 7m². Dům "B" má užitnou plochu 174, 5m², plus sklepní prostory 87, 3m² a střešní terasy 54, 5m². Jedná se vždy o dvě obytná nadzemní podlaží a střešní ateliér se dvěma terasami pro každý dům. V 1. NP (první nadzemní patro) se nachází hala, koupelna a obývací pokoj s kuchyňským koutem, dále garáž. Ve 2. NP (druhé nadzemní patro) se nachází tři ložnice a prostornější koupelna. Ve 3. NP (třetí nadzemní patro) se nachází střešní ateliér se vstupy na dvě terasy, z nichž bude moc hezký výhled na Prahu. V celé ploše půdorysu domu je podzemní podlaží s výškou stropu 2, 55m se širokým potenciálem využití na kanceláře, skladové prostory, tělocvičnu, posilovnu, herny apod. .
V rámci přípravy stavby již byly realizovány přípojky vody, kanalizace a plynu. Vjezd na pozemek je projektován z ulice Davídkova. Pozemek navazuje na zástavbu prvorepublikových rodinných domů. V sousedství se mimo jiné nachází hotel Mazanka ve vlastnictví Akademie věd ČR. V blízkosti je veškerá občanská vybavenost. V docházkové vzdálenosti nákupní centrum Ládví se supermarketem a mnoha obchody, stanice metra, tramvají a autobusů. Na procházky je vhodný Přírodní park Okrouhlík nebo nedaleký Ďáblický háj. Autem lze v krátkých časových intervalech dojet po celé Praze či využít tunelu Blanka se spojením na důležité výpadovky z Prahy. Lokalitu lze považovat za širší centrum Prahy. Pozemek je situovaný na náhorní plošině s atraktivním výhledem. Součástí prodeje je předání výkresové dokumentace objektu pro územní rozhodnutí včetně již vydaného územního rozhodnutí s nabytím právní moci. Pro další informace neváhejte kontaktovat makléře. Ev. číslo: 653233. Energetický štítek: B
Lokalita: Davídkova , Praha 8, Praha, Česká republika Davídkova, Praha 8, Praha

Kontakt

Ing. Tomáš Suntych


Podobné nabídky v okolí


  • Objednání prohlídky a více informací
  •  
  • Poslat na e-mail
  •  

Zasílání odkazu na realitu emailem: