• Sledovat cenu
  •  

Zasílání upozornění emailem:

Pozemek k bydlení 877 m2 - Poděbradova, Úvaly, okr. Praha-východ (již není v nabídce)

Cena: 9 300 000 Kč
Stav:archiv
parcela: 877m2
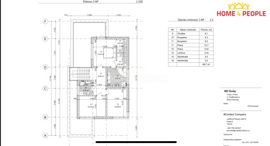
Popis: cena včetně provize a právního servisu. prodej pěkného pozemku o celkové výměře 877 m², nacházejícího se v tiché lokalitě Úvaly. Pozemek vznikl rozdělením velkého pozemku na dva menší pozemky. Na hranici pozemku je dálkov...ý vodovod a kanalizace. Máme k dispozici a řešíme taky případný projekt rodinného domu na klíč viz foto. V případě, že máte na prodej nemovitost, lze se dohodnout na výkupu nemovitosti. Nemovitost se nachází v žádná a tiché lokalitě v Úvalech, vše v dosahu, školy, školky, obchody, lékař. V případě zájmu o prohlídku mně neváhejte kontaktovat. Ev. číslo: 30706. Energetický štítek: G
  • Vložení inzerátu:
    11.3.2024
  • Kód:
    3764739
  • Typ nemovitosti:
    Pozemek k bydlení
  • Energetická náročnost:
    G - Mimořádne nehospodárná
  • Nabídky v okolí:
  • Informace o obci:
    Obec Úvaly má 5937 obyvatel, z toho 3939 v produktivním věku.
    V obci se nachází pošta.
    V obci se nachází škola, popř. školka.
    V obci se nachází zdravotní zařízení.
    V obci je rozvod kanalizace.
    V obci je rozvod městské vody.
    V obci je rozvod plynu.

Podobné nabídky v okolí

Lokalita: Poděbradova , Úvaly, okres Praha-východ, Česká republika Poděbradova, Úvaly, okr. Praha-východ