• Sledovat cenu
  •  

Zasílání upozornění emailem:

Pozemek k bydlení 723 m2 - Kladenská, Buštěhrad, okr. Kladno (již není v nabídce)

Cena: 6 900 000 Kč
Stav:archiv
parcela: 723m2
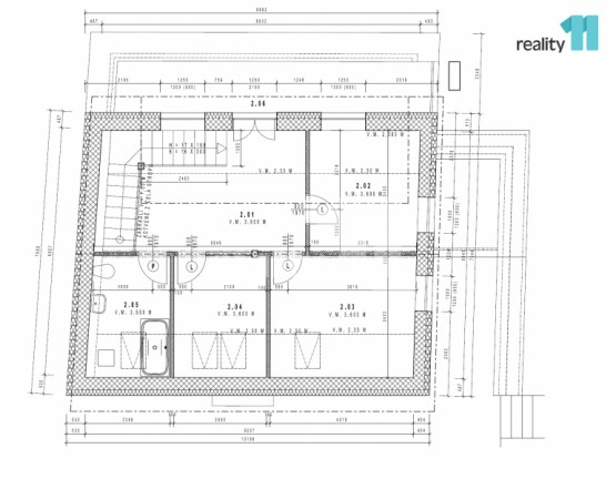
Popis: cena včetně projektu. Reality 11 Vám zprostředkují koupi velice hezkého, slunného stavebního pozemku, o velikosti 723 m², umístěného v centru obce Buštěhrad, se skvělou dostupností do Kladna i Prahy.
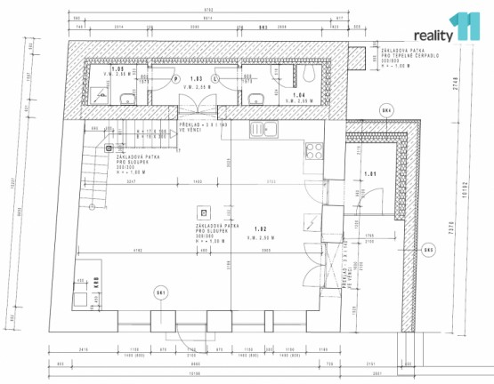
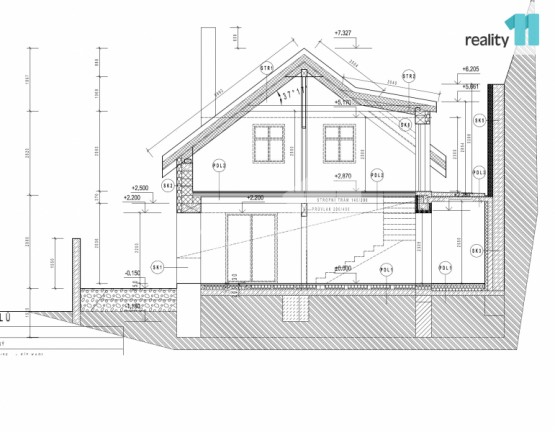
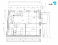
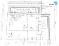
Na mírně svažitém ...pozemku, se nachází započatá stavba rodinného domu, vznikající na místě původního domu č. p. 285. Je zde nová základová deska a téměř dokončené obvodové zdivo prvního podlaží, s plánovaným půdorysem cca 94 m². Nachystané odpady, voda, elektřina, obvodové zdivo ze železobetonu. Dům je naplánován s dispozicí 4+kk, kdy v přízemí je velký obývací pokoj s kuchyňským koutem a prostorem pro krb, koupelna s toaletou, technická místnost pro tepelné čerpadlo a jako šatna a terasa (může být zimní zahrada). V horním patře pak tři ložnice (mohou zůstat pouze dvě), s terasou a opět koupelna.
Na pozemku je dále dřevěná garáž, která slouží zejména jako zázemí pro stavbu, do budoucna se plánovalo vytvoření dalších dvou parkovacích míst.
Schválené stavební povolení, k dispozici zpracovaný projekt. Plyn na hranici pozemku.
Uvedená cena je včetně veškerých podkladů, kompletního právního servisu a provize. Je k jednání. Domluvte si osobní prohlídku. Ev. číslo: 23621. Energetický štítek: G
  • Vložení inzerátu:
    13.12.2021
  • Kód:
    3267861
  • Typ nemovitosti:
    Pozemek k bydlení
  • Energetická náročnost:
    G - Mimořádne nehospodárná
  • Nabídky v okolí:
  • Informace o obci:
    Obec Buštěhrad má 2835 obyvatel, z toho 1950 v produktivním věku.
    V obci se nachází pošta.
    V obci se nachází škola, popř. školka.
    V obci se nachází zdravotní zařízení.
    V obci je rozvod kanalizace.
    V obci je rozvod městské vody.
    V obci je rozvod plynu.

Podobné nabídky v okolí

Lokalita: Kladenská , Buštěhrad, okres Kladno, Česká republika Kladenská, Buštěhrad, okr. Kladno