• Sledovat cenu
  •  

Zasílání upozornění emailem:

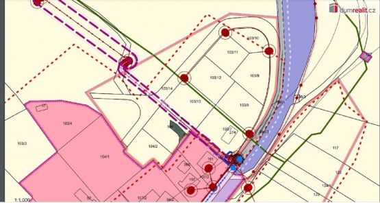
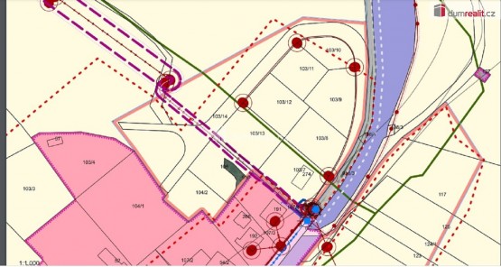
Pozemek k bydlení 562 m2 - Polichno , Luhačovice, okr. Zlín

Cena: 1 395 000 Kč
Stav:Volný
parcela: 562m2
Popis: převod investičního pozemku , trvalý travní porost, v katastru Polichno, obci Luhačovice. Pozemek se nachází v části Polichna, směrem na Luhačovice.
Územní plán Města Luhačovic, kam Polichno patří řadí tyto plochy d...o návrhů k individuálnímu bydlení ( BI ) .
Výměra pozemku činí 562 m². Jedná se o pravidelný čtyřúhelník s délkou stran 22 x 25 m . Pozemek je přístupný po obkružující parcele - pozemku určeném jako budoucí komunikace - cesta. Současný vlastník má v tomto obkružujícím pozemku ( přístupu ) spoluvlastnický podíl o velikosti 1/10 , tento podíl je součástí převodu.
Jedná se o lokalitu s rozvojovým stavebním potenciálem.
Na pozemku je již dovedená elektřina do sloupku. Vodovodní řád je v dosahu cca 150 m (v ulici podél trati).
Splašková kanalizace v Polichně bývá řešena ČOV (osobní vlastnictví) se vsakováním, dešťová kanalizace přes retenční nádrž a vsakování.
Ráda Vám k nabídce a její lokalitě poskytnu více informací . Ev. číslo: 653110. Energetický štítek: G
  • Vložení inzerátu:
    22.11.2025
  • Kód:
    3993888
  • Typ nemovitosti:
    Pozemek k bydlení
  • Umístění objektu:
    Okraj
  • Energetická náročnost:
    G - Mimořádne nehospodárná
  • Nabídky v okolí:
Lokalita: Polichno , Luhačovice, okres Zlín, Česká republika Polichno , Luhačovice, okr. Zlín, Zlínský kraj

Kontakt

Ing. Karla Valčíková
Objednání prohlídky a více informací


Podobné nabídky v okolí


Volná pracovní místa ExpertPrace.cz
  • Objednání prohlídky a více informací
  •  
  • Poslat na e-mail
  •  

Zasílání odkazu na realitu emailem: