• Sledovat cenu
  •  

Zasílání upozornění emailem:

Pozemek k bydlení 469 m2 - Kacákova Lhota, okr. Jičín

Cena: 1 800 000 Kč
Stav:Volný
parcela: 469m2
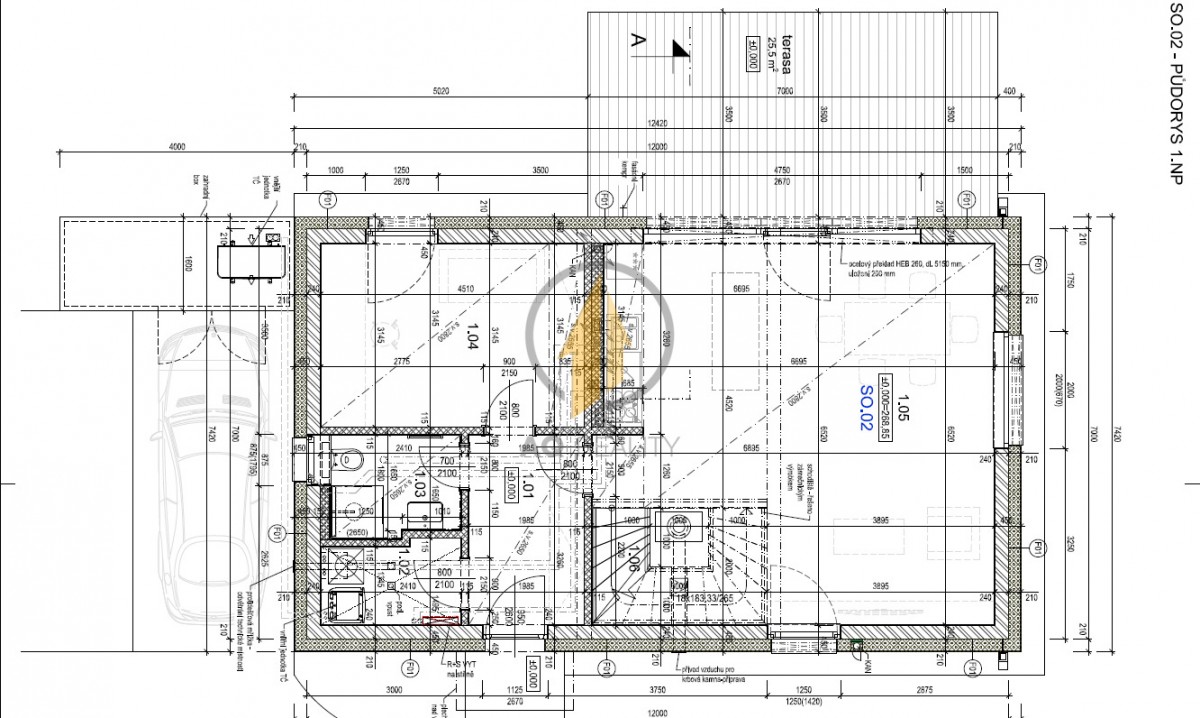
Popis: Prodej stavebního pozemku o CP 469 m2 v obci Kacákova Lhota, 5 km od Jičína. V ceně je zahrnuta i kompletní projektová dokumentace se stavebním povolením pro výstavbu rodinného domu 5kk o podlahové ploše 140 m...p>2 se zahradou a parkovacím stáním. IS: el. na hranici pozemku, vybudovaná ČOV (osobní vlastnictví) a přípojka obecního vodovodu. Zajímavá investice. Rádi nabízíme i financování hypotečním úvěrem.
  • Vložení inzerátu:
    23.6.2024
  • Kód:
    0968
  • Typ nemovitosti:
    Pozemek k bydlení
  • Umístění objektu:
    Klidná část
  • Nabídky v okolí:
  • Informace o obci:
    Obec Kacákova Lhota má 154 obyvatel, z toho 107 v produktivním věku.
    V obci je rozvod kanalizace.
    V obci je rozvod městské vody.
Lokalita: Kacákova Lhota, okres Jičín, Česká republika Kacákova Lhota, okr. Jičín, Královéhradecký kraj

Kontakt

Renata Kovářová


Podobné nabídky v okolí


Volná pracovní místa ExpertPrace.cz
  • Objednání prohlídky a více informací
  •  
  • Poslat na e-mail
  •  

Zasílání odkazu na realitu emailem: