• Sledovat cenu
  •  

Zasílání upozornění emailem:

Pozemek k bydlení 401 m2 - Sousední, Brno, okr. Brno-město

Cena: 7 980 000 Kč
Stav:Volný
parcela: 401m2
Popis: Lokalita:
Jehnice, Brno – severní okraj města

Rozloha pozemku: 401 m²

Přístup: z hlavní komunikace ve směru na Ořešín


Popis pozemku:

Předmětem prodeje je stavební pozemek vhodný jak pro rodinné bydlení, tak pro ...investici (např. výstavbu dvoubytového domu).
3 strany pozemku jsou oplocené, čtvrtá je vykolíkovaná
Přes pozemek vede kanalizace napojená na obecní síť (nutné zapsat věcné břemeno)
Možnost přímého napojení na inženýrské sítě
Pozemek je u hlavní silnice, s pohodlným přístupem i parkováním v okolí

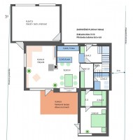
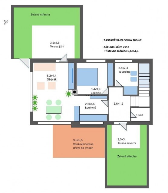
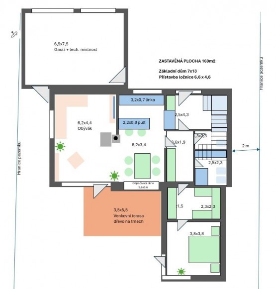
Pro lepší představu přikládáme dvě architektonické studie dvoupatrového domu s garáží a dvěma bytovými jednotkami – ideální řešení jak pro rodinu, tak pro investora.

Výhody lokality – Jehnice:
Jehnice jsou klidná městská část s vesnickým charakterem a přitom výbornou dostupností do centra Brna.

Mateřská a základní škola (1. –5. ročník)
Veřejná doprava: autobusové linky Dopravní podnik města Brna
Nejbližší železniční zastávky: Brno–Řečkovice a Česká (2, 5 km)
Lesy Soběšická vrchovina – ideální pro procházky, cyklistiku i relax
Klidná lokalita s příjemnou komunitní atmosférou

Jehnice si zachovaly původní ráz vesnice doplněný moderní výstavbou. Nenajdete tu rušný průmysl – jen přírodu, klid a dobrou dostupnost do města.

Důležité informace:
Rozloha pozemku: 401 m²
Možnost výstavby RD (rodinný dům) nebo domu se 2 bytovými jednotkami
Kanalizace na pozemku (věcné břemeno nutno zapsat)
Parkování v okolí
Skvělá dopravní dostupnost

Prohlídky a kontakt:
Prohlídky jsou možné po předchozí domluvě.

Neváhejte mě kontaktovat pro bližší informace nebo sjednání termínu.

Takové pozemky v Jehnicích jsou vzácné – buďte první, kdo této příležitosti využije!

Majitelé si vyhrazují právo vybrat kupujícího dle vlastních kritérií.
  • Vložení inzerátu:
    8.10.2025
  • Kód:
    BK232333
  • K dispozici od:
    0.0.0
  • Typ nemovitosti:
    Pozemek k bydlení
  • Nabídky v okolí:
  • Informace o obci:
    Obec Brno má 371371 obyvatel, z toho 256490 v produktivním věku.
    V obci se nachází pošta.
    V obci se nachází škola, popř. školka.
    V obci se nachází zdravotní zařízení.
    V obci je rozvod kanalizace.
    V obci je rozvod městské vody.
    V obci je rozvod plynu.
Lokalita: Sousední , Brno, okres Brno-město, Česká republika Sousední, Brno, okr. Brno-město


Podobné nabídky v okolí


Volná pracovní místa ExpertPrace.cz
  • Objednání prohlídky a více informací
  •  
  • Poslat na e-mail
  •  

Zasílání odkazu na realitu emailem: