• Sledovat cenu
  •  

Zasílání upozornění emailem:

Pozemek k bydlení 244 m2 - Mutěnice, okr. Hodonín (již není v nabídce)

Cena: 490 000 Kč
Stav:archiv
parcela: 244m2
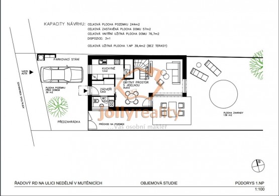
Popis: Máte zájem bydlet ve vlastním domě s malou zahrádkou a parkováním na vlastním pozemku, neváhejte a využijte nabídky prodeje pozemku 244m2 v Mutěnicích. Stavební pozemek je slunný, rovný o uliční šíři 8 m a délce... cca. 30 m. Pozemek je podle územně plánovací informace v ploše 4a – plochy obytné. Tyto plochy jsou určeny k individuálnímu bydlení v rodinných domech. Dle územně plánovací informace je možnost stavět do hranice pozemku. Hlavní řady vedou v komunikaci před pozemkem, stačí pouze zřídit přípojky. Na výstavbu rodinného domu, který splňuje požadavky stavebního úřadu, majitelka vypracovala studii viz. obr. , která je součásti ceny. Cena k jednání. Případný zájemce může začít hned stavět. Neváhejte využít výstavbu menšího domu se zahrádkou v zabydlené lokalitě. V Mutěnicích je ZŠ, MŠ, obchod s potravinami, lékárna a restaurace. Z Mutěnic je dobrá dostupnost do Hodonína autem i autobusem. Naši hypoteční specialisté Vám rádi pomůžou s financováním. Rádi Vám uděláme prohlídku nemovitosti.

Podobné nabídky v okolí

Lokalita: Mutěnice, okres Hodonín, Česká republika Mutěnice, okr. Hodonín, Jihomoravský kraj