• Sledovat cenu
  •  

Zasílání upozornění emailem:

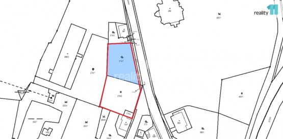
Pozemek k bydlení 2436 m2 - Pražská, Krásná Lípa, okr. Děčín (již není v nabídce)

Cena: 1 200 Kč/m2
Stav:archiv
parcela: 2436m2
Popis: včetně odměny RK a právních služeb. koupi dvou stavebních pozemků o velikosti 1. 313 m² a 1. 123 m². Pozemky jsou v územním plánu určené pro výstavbu smíšených staveb, staveb pro bydlení (bytové domy) a stavby ubytovací (p...ečovatelské domy, hotely, penziony). Pozemky jsou rovinaté a vhodné pro ty, kteří hledají klid a pohodu v přírodě, ale zároveň chtějí mít dostupnost k městským službám. Krásná Lípa je malebné městečko nacházející se v krajinném parku České Švýcarsko. V této oblasti je mnoho turistických tras a cyklostezek, které umožňují objevovat krásy této přírodní oblasti. Ev. číslo: 25384.
  • Vložení inzerátu:
    24.5.2023
  • Kód:
    3601364
  • Typ nemovitosti:
    Pozemek k bydlení
  • Umístění objektu:
    Klidná část
  • Nabídky v okolí:
  • Informace o obci:
    Obec Krásná Lípa má 3683 obyvatel, z toho 2488 v produktivním věku.
    V obci se nachází pošta.
    V obci se nachází škola, popř. školka.
    V obci se nachází zdravotní zařízení.
    V obci je rozvod kanalizace.
    V obci je rozvod městské vody.
    V obci je rozvod plynu.

Podobné nabídky v okolí

Lokalita: Pražská , Krásná Lípa, okres Děčín, Česká republika Pražská, Krásná Lípa, okr. Děčín