• Sledovat cenu
  •  

Zasílání upozornění emailem:

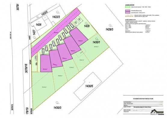
Pozemek k bydlení 2312 m2 - Svinov , Ostrava, okr. Ostrava-město

Cena: 6 990 000 Kč
Stav:Volný
parcela: 2312m2
Popis: Prodej souboru stavebních pozemků s architektonickou studií – Řadové domy Svinov.

Nabízíme k prodeji soubor stavebních pozemků o celkové výměře 2 312 m² v atraktivní a stabilně se rozvíjející lokalitě Ostrava–Svinov. Součá...stí nabídky je také kompletní architektonická studie na výstavbu moderních řadových domů, konzultovaná se stavebním úřadem. Projekt je tedy připraven k okamžitému rozpracování nebo využití jako podklad pro vlastní developerský záměr.

Strategická investiční příležitost.

Území je dle územního plánu vedeno jako ZV – plocha pro bydlení v rodinných domech, s povolenou zastavěností až 50 %. Na pozemcích lze zastavět přibližně 1 156 m², přičemž současná studie počítá se zastavěnou plochou 503, 76 m².

Nabídka tak dává investorům mimořádný prostor:
- pokračovat v již navrženém projektu řadových rodinných domů,
- případně vytvořit vlastní architektonické řešení,
- nebo rozprodat pozemky jednotlivým zájemcům o samostatnou výstavbu.
- Hotová architektonická studie

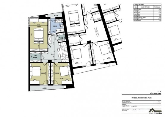
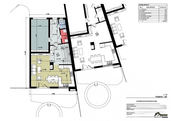
K dispozici je zpracovaná stavebně - architektonická studie, zahrnující:
- půdorysy 1. a 2. nadzemního podlaží,
- dispoziční řešení jednotlivých domů (obytné části, garáže, technické místnosti, šatny, hygienické zázemí),
- pohledy na objekt ze všech světových stran,
- vizualizace projektu.

Součástí návrhu jsou moderní, prostorově efektivní domy s promyšlenou dispozicí. Studie pracuje s garážemi, obývacími prostory s možností instalace krbu, komfortním zázemím i balkony v druhém nadzemním podlaží.

Lokalita

Svinov patří mezi nejvyhledávanější části Ostravy díky:
- vynikající dopravní dostupnosti (MHD, vlak, dálnice),
- občanské vybavenosti v docházkové vzdálenosti,
- klidovému charakteru okolní zástavby,
- vysoké poptávce po rezidenčním bydlení.

Lokalita je ideální pro rodinné domy a dlouhodobě zde roste zájem jak koncových klientů, tak developerů.

Pro koho je nabídka ideální?
- pro developerské společnosti hledající projekt s jasným investičním potenciálem,
- pro stavební firmy s možností okamžité realizace,
- pro investory, kteří chtějí pozemky rozdělit a prodat jednotlivým stavebníkům,
- pro soukromé zájemce, kteří chtějí vybudovat vlastní projekt v žádané lokalitě.

Klíčové parametry
- Celková plocha pozemků: 2 312 m²
- Zastavitelná plocha: 1 156 m²
- Studie: Řadové domy Svinov
- Územní plán: ZV – zástavba rodinných domů
- Projekt ověřen konzultací se stavebním úřadem

Líbí se Vám tento projekt, nebo pozemky? Neváhejte mě kontaktovat pro více informací.

Pomoc s financováním je u nás samozřejmostí.
  • Vložení inzerátu:
    20.11.2025
  • Kód:
    00616
  • K dispozici od:
    0.0.0
  • Typ nemovitosti:
    Pozemek k bydlení
  • Telekomunikace:
    , Kabelové rozvody
  • Voda:
    dálkový vodovod
  • Elektřina:
    230 V, 380 V
  • Doprava:
    silnice, dálnice, MHD, autobus, vlak
  • Plyn:
    plynovod
  • Odpad:
    kanalizace
  • Komunikace:
    asfaltová
Lokalita: Svinov , Ostrava, okres Ostrava-město, Česká republika Svinov , Ostrava, okr. Ostrava-město, Moravskoslezský kraj

Kontakt

Jiří Sváček


Podobné nabídky v okolí


  • Objednání prohlídky a více informací
  •  
  • Poslat na e-mail
  •  

Zasílání odkazu na realitu emailem: