• Sledovat cenu
  •  

Zasílání upozornění emailem:

Pozemek k bydlení 2111 m2 - Lučany nad Nisou , okr. Jablonec nad Nisou

Cena: 2 790 000 Kč
Stav:Volný
parcela: 2111m2
Popis: Hledáte místo pro stavbu svého vysněného domu s rozlehlou zahradou? Chcete to mít kousek do města i do Jizerek? Preferujete klid, ale trváte na dobré vybavenosti a dopravní obslužnosti? Pak možná tento pozemek čeká zrovna na... vás.

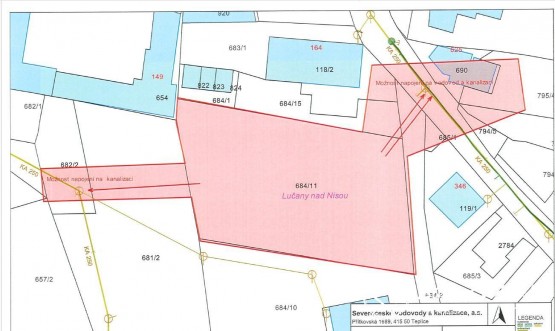
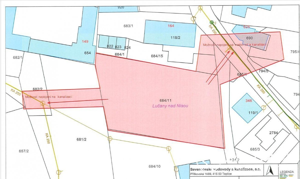
Nabízíme ke koupi stavební pozemek o výměře 2. 111 m2 v Lučanech nad Nisou. Jedná se o pozemek nepravidelného obdélníku, ve vrchní části téměř rovinatého, ve spodní části středně svažitého terénu. Přístup k pozemku je přímo z veřejné komunikace.

Veškeré IS se nacházejí do 15 m od hranice pozemku - elektřina, plyn, veřejný vodovod a kanalizace.

Dle územního plánu je pozemek zařazen do ploch zastavitelných: plochy obytné - bydlení v rodinných domech, s možností výstavby 1 rodinného domu, max. 2 NP a obytné podkroví, ve svahu s možností suterénu. Koeficient zastavění max. 20%, z toho hlavní objekt max. 220 m2.

V místě se nachází MŠ, ZŠ, obchody, pošta, úřad, restaurace, benzinová stanice, apod. Dobrá dostupnost větších měst: Jablonec nad Nisou 3 km, Liberec 12 km, Tanvald 7 km. Autobusová zastávka cca 120 m od pozemku, vlak cca 200 m.

Jizerské hory jsou velice oblíbené pro cyklistiku, pěší turistiku, běžecké i sjezdové lyžování a svou sklářskou historii. Dominují množstvím rozhledem, přehrad, skalních vyhlídek, přírodních rezervací a dalších turistických cílů.

V ceně je zahrnutý veškerý realitní a právní servis, včetně správních poplatků. Financování úvěrem zajistíme.
  • Vložení inzerátu:
    13.10.2025
  • Kód:
    1200
  • Typ nemovitosti:
    Pozemek k bydlení
  • Doprava:
    silnice, MHD, autobus, vlak
  • Komunikace:
    asfaltová
  • Bezbariérový přístup:
    Ano
  • Nabídky v okolí:
  • Informace o obci:
    Obec Lučany nad Nisou má 1808 obyvatel, z toho 1326 v produktivním věku.
    V obci se nachází pošta.
    V obci se nachází škola, popř. školka.
    V obci se nachází zdravotní zařízení.
    V obci je rozvod kanalizace.
    V obci je rozvod městské vody.
    V obci je rozvod plynu.
Lokalita: Lučany nad Nisou , okres Jablonec nad Nisou, Česká republika Lučany nad Nisou , okr. Jablonec nad Nisou, Liberecký kraj


Podobné nabídky v okolí


Volná pracovní místa ExpertPrace.cz
  • Objednání prohlídky a více informací
  •  
  • Poslat na e-mail
  •  

Zasílání odkazu na realitu emailem: