• Sledovat cenu
  •  

Zasílání upozornění emailem:

Pozemek k bydlení 20438 m2 - Otročiněves , okr. Beroun (již není v nabídce)

Cena: 450 Kč/m2
Stav:archiv
parcela: 20438m2
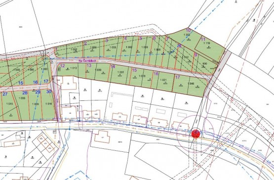
Popis: Prodej stavebních pozemků v lokalitě Na Černidlech, o celkové výměře 20 438 m2, pro developerský záměr výstavby rodinných domů. Otročiněves je klidná obec s bezvadnou dostupností do Berouna a rychlým spojením na... dálnici. Nyní rozděleno na 21 samostatných parcel a přístupovou komunikaci, po úpravě územního plánu bude k dispozici 17 stavebních pozemků po cca 1. 000 m2. Nyní prochází připomínkami studie řešení celého území. Napojení inženýrských sítí v místě.
  • Vložení inzerátu:
    30.9.2019
  • Kód:
    AR12
  • Typ nemovitosti:
    Pozemek k bydlení
  • Doprava:
    silnice, dálnice, autobus, vlak
  • Bezbariérový přístup:
    Ano
  • Nabídky v okolí:
  • Informace o obci:
    Obec Otročiněves má 532 obyvatel, z toho 358 v produktivním věku.
    V obci se nachází zdravotní zařízení.
    V obci je rozvod kanalizace.
    V obci je rozvod městské vody.
    V obci je rozvod plynu.

Podobné nabídky v okolí

Lokalita: Otročiněves , okres Beroun, Česká republika Otročiněves , okr. Beroun, Středočeský kraj