• Sledovat cenu
  •  

Zasílání upozornění emailem:

Pozemek k bydlení 1706 m2 - Pražská 30, Vyžlovka, okr. Praha-východ

Cena: 4 950 000 Kč
Stav:Volný
parcela: 1706 m2
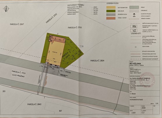
Popis: Nabízíme k prodeji stavební pozemek vhodný pro výstavbu rodinného domu. Pozemek o celkové výměře 1707 m2,  se skládá ze 3 samostatných parcel(plánek ve fotogalerii), dle územního plánu je určeno k zastavění 244m<...sup>2, ostatní možno využít jako zahradu, parkování apod. . Rovinatý pozemek lichoběžníkového tvaruje je umístěn při ulici Pražská v intravilánu obce Jevany - Vyžlovka, bezproblémový přístup se sjezdem z hlavní silnice( povolení sjezdu včetně projektové dokumentace), v přiléhající komunikaci jsou umístěny páteřní sítě s možností připojení(kanalizace, voda) , el. je již zavedena + povolení na studnu. K dispozici studie a projektová dokumentace na umístění RD (rodinný dům)( ve fotogalerii). Možnost přikoupení dalšího navazujícího pozemku, nebo jeho části, podmínky dle dohody. Další podrobné informace poskytne makléř zakázky. Doporučujeme

Poznámka k ceně: vhodné jako investice
  • Vložení inzerátu:
    9.2.2026
  • Kód:
    4106091
  • Typ nemovitosti:
    Pozemek k bydlení
  • Plocha parcely:
    1706 m2
  • Doprava:
    autobus
  • Komunikace:
    asfaltová
  • Nabídky v okolí:
  • Informace o obci:
    Obec Vyžlovka má 654 obyvatel, z toho 477 v produktivním věku.
    V obci je rozvod kanalizace.
    V obci je rozvod městské vody.
Lokalita: Pražská 30, Vyžlovka, okres Praha-východ, Česká republika Pražská 30, Vyžlovka, okr. Praha-východ



Volná pracovní místa ExpertPrace.cz
  • Objednání prohlídky a více informací
  •  
  • Poslat na e-mail
  •  

Zasílání odkazu na realitu emailem: