• Sledovat cenu
  •  

Zasílání upozornění emailem:

Pozemek k bydlení 1683 m2 - Vysoká Lípa , Jetřichovice, okr. Děčín (již není v nabídce)

Cena: 3 990 000 Kč
Stav:archiv
parcela: 1683m2
Popis: Prodej exkluzivního stavebního pozemku s výjimečným výhledem na skalní masiv v srdci Národního parku České Švýcarsko

Nabízíme k prodeji stavební pozemek o výměře 1683 m² situovaný v klidné části malebné obce nedaleko státní ...hranice s Německem – ideální lokalita i pro zahraniční klientelu. Součástí nabídky je také přístupová komunikace (247 m²) a samostatný pozemek se zkolaudovanou, hlubinnou studnou (15 m², hloubka vrtu 100 m).

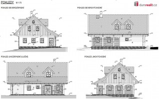
K pozemku bylo vydáno pravomocné územní rozhodnutí na výstavbu moderní poloroubené chalupy s domácí čistírnou odpadních vod. Aktuálně je zpracovávána projektová dokumentace pro stavební povolení, která je zahrnuta v ceně prodeje.

Technická infrastruktura:
• Elektrická přípojka 3×25 A (již zprovozněna)
• Vlastní hlubinná studna (vrt 100 m)
• Vlastní přístupová komunikace
• Kompletní dokumentace pro vydání stavebního povolení

Pozemek se nachází v atraktivní lokalitě s výbornou dostupností do jádra národního parku. Místo je ideální pro rekreační nebo trvalé bydlení s možností komerčního využití (např. pronájem rekreačního objektu). V obci je dostupná základní občanská vybavenost.

Jedinečná příležitost pro ty, kdo hledají výjimečné místo v přírodě s kvalitním zázemím a potenciálem pro budoucí zhodnocení.
Pokud máte jakýkoliv dotaz, neváhejte mne kontaktovat. Ev. číslo: 646682.

Podobné nabídky v okolí

Lokalita: Vysoká Lípa , Jetřichovice, okres Děčín, Česká republika Vysoká Lípa , Jetřichovice, okr. Děčín, Ústecký kraj