• Sledovat cenu
  •  

Zasílání upozornění emailem:

Pozemek k bydlení 162 m2 - Lipůvka , okr. Blansko (již není v nabídce)

Cena: 4 410 000 Kč
Stav:archiv
parcela: 162 m2
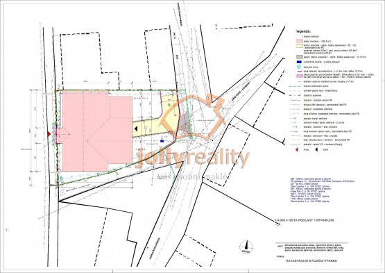
Popis: Nabízíme projekt bytového domu, který je umístěný na pozemku
o rozloze 500 m2, v katastrálním území Lipůvka, v okrese Blansko. Projekt na výstavbu bytů včetně půdorysu, situace širších vztahů
a dalších dokum...entů byl vypracován projektantkou a projednán na stavebním úřadě a na odboru územního plánování.
Projekt počítá se zastavěnou plochou bytového domu 289, 8 m2, v 1. NP (první nadzemní patro) jsou umístěny , sklepy a parkovací stání, ve 2. NP (druhé nadzemní patro). a 3. NP (třetí nadzemní patro). jsou umístěny jednotlivé byty od 1+kk (25, 8 m2) až po 3+kk (72 m2). Většina oken bytů plánovaného projektu je orientovaná do vnitrobloku. Menší část oken bude směrem k hlavní komunikaci. Na pozemku jsou všechny inženýrské sítě. Majitelé prodávají pozemek včetně projektu za cenu 4. 410. 000, - Kč včetně provize. Investiční záměr na výstavbu bytů je vhodné konzultovat se zastupiteli obce.
V obci je dobrá občanská vybavenost: MŠ, ZŠ, obchod s potravinami, lékárna, pošta, benzínka, restaurace, cukrárna, kadeřnictví a hřiště.
Z Lipůvky je dobrá dostupnost do Kuřimi, Blanska a do Brna. Doporučujeme Vám prohlídku.
  • Vložení inzerátu:
    21.11.2020
  • Kód:
    2101003
  • K dispozici od:
    0.0.0
  • Typ nemovitosti:
    Pozemek k bydlení
  • Zastavěná plocha:
    500 m2
  • Plocha parcely:
    162 m2
  • Stav objektu:
    Před rekonstrukcí
  • Voda:
    místní zdroj, dálkový vodovod
  • Elektřina:
    230 V, 380 V
  • Doprava:
    silnice, autobus
  • Plyn:
    plynovod
  • Odpad:
    kanalizace
  • Komunikace:
    asfaltová
  • Nabídky v okolí:
  • Informace o obci:
    Obec Lipůvka má 1217 obyvatel, z toho 854 v produktivním věku.
    V obci se nachází pošta.
    V obci se nachází škola, popř. školka.
    V obci se nachází zdravotní zařízení.
    V obci je rozvod kanalizace.
    V obci je rozvod městské vody.
    V obci je rozvod plynu.

Podobné nabídky v okolí

Lokalita: Lipůvka , okres Blansko, Česká republika Lipůvka , okr. Blansko, Jihomoravský kraj