• Sledovat cenu
  •  

Zasílání upozornění emailem:

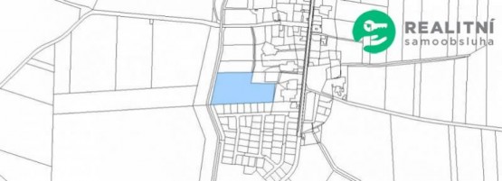
Pozemek k bydlení 15783 m2 - Sopřeč , okr. Pardubice (již není v nabídce)

Cena: 500 Kč/m2
Stav:archiv
parcela: 15783m2
Popis: Nabízíme k prodeji pozemek, který je v hodný k investici.
Pozemek je vedený jako trvalý travní porost, dále navazuje na započatou výstavbu v obci Sopřeč, k. ú. Sopřeč. Výměra pozemku je 15. 783m2. ...
  • Vložení inzerátu:
    16.8.2022
  • Kód:
    RS309171
  • Typ nemovitosti:
    Pozemek k bydlení
  • Bezbariérový přístup:
    Ano
  • Nabídky v okolí:
  • Informace o obci:
    Obec Sopřeč má 288 obyvatel, z toho 192 v produktivním věku.
    V obci je rozvod kanalizace.
    V obci je rozvod městské vody.
    V obci je rozvod plynu.

Podobné nabídky v okolí

Lokalita: Sopřeč , okres Pardubice, Česká republika Sopřeč , okr. Pardubice, Pardubický kraj