• Sledovat cenu
  •  

Zasílání upozornění emailem:

Pozemek k bydlení 15009 m2 - Pardubická, Choteč, okr. Pardubice (již není v nabídce)

Cena: 590 Kč/m2
Stav:archiv
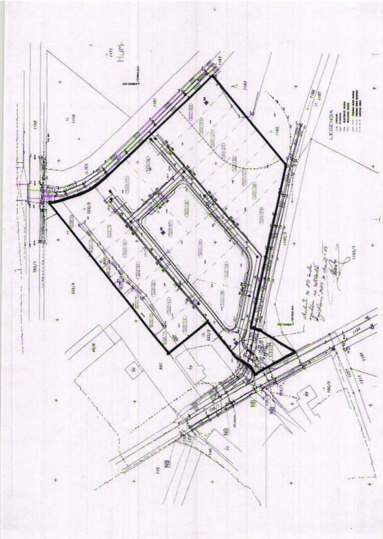
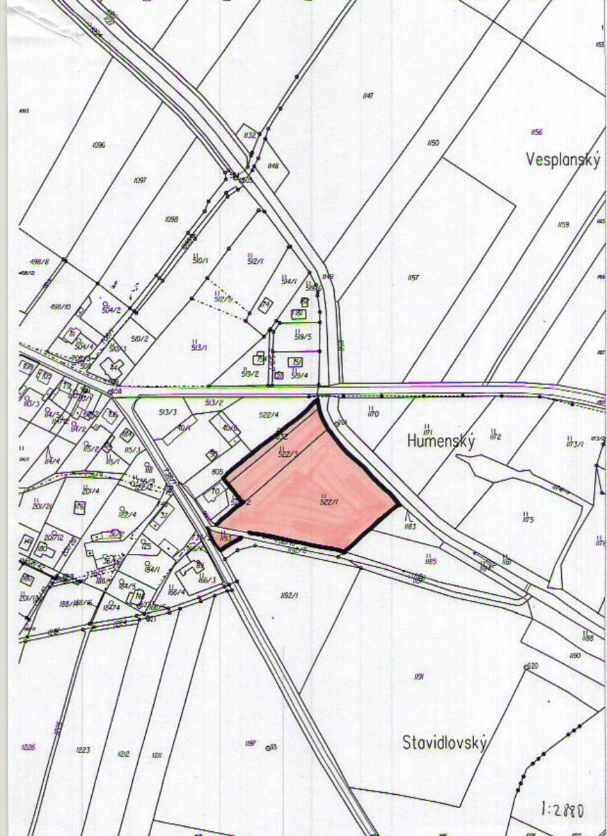
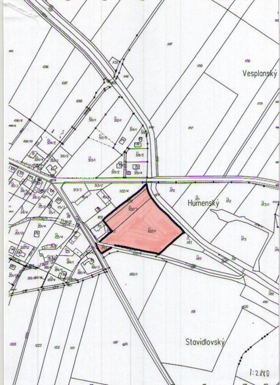
parcela: 15009m2
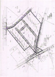
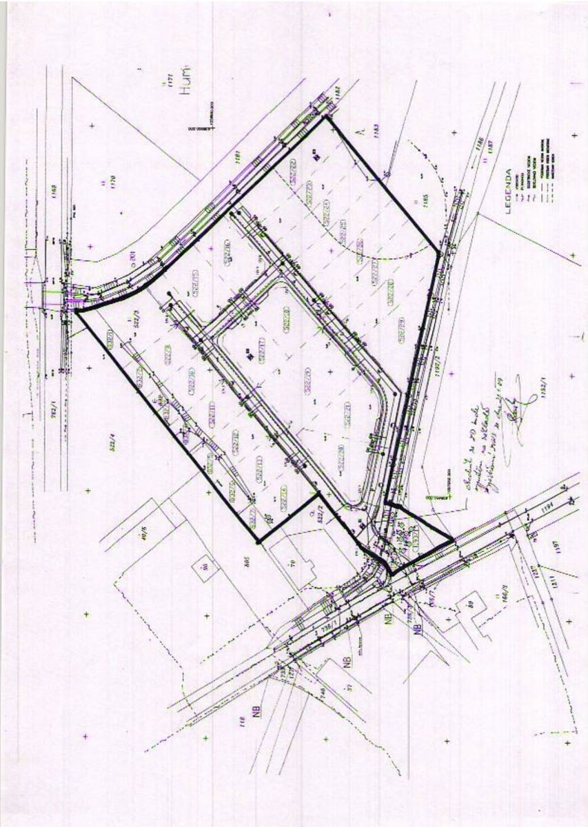
Popis: Prodám stavební pozemky určené k výstavbě rodinných domů 22 pozemkových parcel, součastí prodeje je priojektová dokumentace na zasíťování včetně všech vyjadření příslušných orgánů potřebných k vydání územního rozhodnutí. Mo...žná i varianta na rozdělenip na 34 dvojdomků.
  • Vložení inzerátu:
    11.12.2019
  • Kód:
    183/3969
  • Typ nemovitosti:
    Pozemek k bydlení
  • Voda:
    dálkový vodovod
  • Elektřina:
    380 V
  • Doprava:
    silnice, autobus
  • Bezbariérový přístup:
    Ano
  • Energetická náročnost:
    G - Mimořádne nehospodárná
  • Nabídky v okolí:
  • Informace o obci:
    Obec Choteč má 358 obyvatel, z toho 242 v produktivním věku.
    V obci je rozvod městské vody.
    V obci je rozvod plynu.

Podobné nabídky v okolí

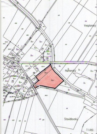
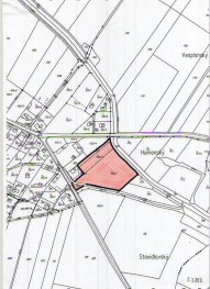
Lokalita: Pardubická , Choteč, okres Pardubice, Česká republika Pardubická, Choteč, okr. Pardubice