• Sledovat cenu
  •  

Zasílání upozornění emailem:

Pozemek k bydlení 1328 m2 - Mělnická 186, Libiš, okr. Mělník

Cena: 10 000 000 Kč
Stav:Volný
parcela: 1328m2
Popis: Ve výhradním zastoupení majitele Vám představujeme k prodeji stavební pozemek o výměře 1328 m2, v rozvíjející lokalitě Neratovice - Libiš .
Unikátní investiční příležitost pro development bliz Prahy.
Pozemek s...e nachází pouhých 15 min autem do Prahy a OC Letňany .
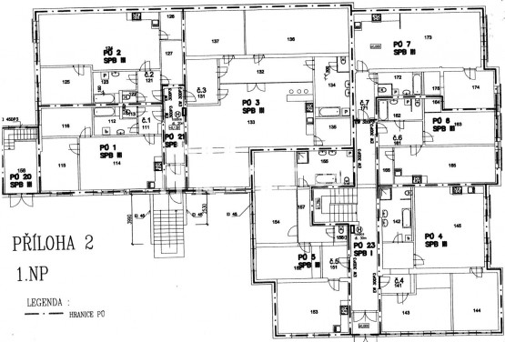
Bylo vydáno povolení pro komunikace a stavební povolení na kompletní rekonstrukci objektu a přestavbu na 3 patrový bytový dům s 18 byty a 18 venkovních parkovacích stání , stavební povolení bohužel už davno propadlo . Inženýrské sítě jsou na pozemků.
Je možné využití pro výstavbu bytu a komerčních prostor.

Pro více informací nás neváhejte kontaktovat.
  • Vložení inzerátu:
    13.6.2023
  • Kód:
    25
  • Typ nemovitosti:
    Pozemek k bydlení
  • Elektřina:
    230 V
  • Doprava:
    MHD, autobus
  • Komunikace:
    asfaltová
  • Bezbariérový přístup:
    Ano
  • Nabídky v okolí:
  • Informace o obci:
    Obec Libiš má 2069 obyvatel, z toho 1483 v produktivním věku.
    V obci se nachází pošta.
    V obci se nachází zdravotní zařízení.
    V obci je rozvod kanalizace.
    V obci je rozvod městské vody.
    V obci je rozvod plynu.
Lokalita: Mělnická 186, Libiš, okres Mělník, Česká republika Mělnická 186, Libiš, okr. Mělník


Podobné nabídky v okolí


Volná pracovní místa ExpertPrace.cz
  • Objednání prohlídky a více informací
  •  
  • Poslat na e-mail
  •  

Zasílání odkazu na realitu emailem: