• Sledovat cenu
  •  

Zasílání upozornění emailem:

Pozemek k bydlení 1303 m2 - Bystrá , okr. Pelhřimov (již není v nabídce)

Cena: 2 490 000 Kč
Stav:archiv
parcela: 1303m2
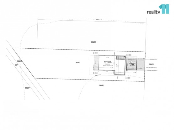
Popis: Dovoluji si nabídnout ke koupi pozemek určený k výstavbě rodinného domu v obci Bystrá nedaleko města Humpolec. Parcela má výměru 1303m² a je situována v nově vybudované lokalitě na okraji obce. Pozemek je zasíťován (elektři...na a obecní vodovod). Dostanete se k němu pohodlně po asfaltové komunikaci. V lokalitě je taktéž vybudováno veřejné osvětlení. Pozemek je mírně svažitý a připravený k výstavbě. Výhodou je taktéž uzavřenost lokality. Bystrá je menší vesnice v dojezdové vzdálenosti 3km od města Humpolec a také dálnice D1. Rádi Vám zašleme informace z územního plánu obce. S případnou hypotékou může, ale nemusí pomoci náš hypoteční specialista. Pro více informací kontaktujte realitního specialistu. Ev. číslo: 26781. Energetický štítek: G
  • Vložení inzerátu:
    1.5.2025
  • Kód:
    3980453
  • Typ nemovitosti:
    Pozemek k bydlení
  • Umístění objektu:
    Klidná část
  • Energetická náročnost:
    G - Mimořádne nehospodárná
  • Informace o obci:
    Obec Bystrá má 89 obyvatel, z toho 55 v produktivním věku.
    V obci je rozvod městské vody.

Podobné nabídky v okolí

Lokalita: Bystrá , okres Pelhřimov, Česká republika Bystrá , okr. Pelhřimov, Vysočina