• Sledovat cenu
  •  

Zasílání upozornění emailem:

Pozemek k bydlení 1200 m2 - Za Tratí, Liberec (již není v nabídce)

Cena: 2 790 000 Kč
Stav:archiv
parcela: 1200m2
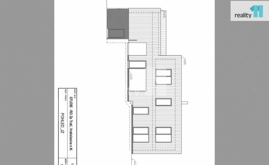
Popis: Včetně právního servisu, cena k jednání. . Reality 11 Vám zprostředkují prodej stavebního pozemku BČ - bydlení čisté o velikosti 1200 m² pro stavbu rodinného domu se zastavitelnou plochou 10% dle ÚP. Pozemek parc. č. 34...46 v obci Liberec, katastrální území Vratislavice nad Nisou, ul. Za Tratí je svažitý s přípravou do 5 rovných teras s moc hezkým výhledem na západní stranu do údolí a v letním období celodenně prosluněným. Místem vás pozemek nedchne maximálním soukromím bez rušivých elementů sousedů, nachází se cca 10 m nad skálou a železniční tratí. Budoucí vlastníci se mohou těšit na soukromí a unikátní umístění pozemku. Nad domem poutní památka Zvonice.
Na pozemku vlastní studna s pitnou vodou, elektřina, voda z řadu a plyn na hranici pozemku, kanalizace v ulici není, odpady řešit formou ČOV (osobní vlastnictví). Přístup k pozemku po obecní asfaltové komunikaci. Připravena studie pro stavbu moderního terasového rodinného domu na pilotech s parkováním pro 2 vozy. Zájemce si však může připravit svou vizi nového bydlení.
Více info podá makléř Reality11 Liberecko. Ev. číslo: 26004.
  • Vložení inzerátu:
    21.4.2024
  • Kód:
    3784704
  • Typ nemovitosti:
    Pozemek k bydlení
  • Nabídky v okolí:
  • Informace o obci:
    Obec Liberec má 101865 obyvatel, z toho 71331 v produktivním věku.
    V obci se nachází pošta.
    V obci se nachází škola, popř. školka.
    V obci se nachází zdravotní zařízení.
    V obci je rozvod kanalizace.
    V obci je rozvod městské vody.
    V obci je rozvod plynu.

Podobné nabídky v okolí

Lokalita: Za Tratí , Liberec, okres Liberec, Česká republika Za Tratí, Liberec